学生たちの受賞作品
プレゼンテーションを見る
作品画像を見る
プレゼンテーションを見る
作品画像を見る
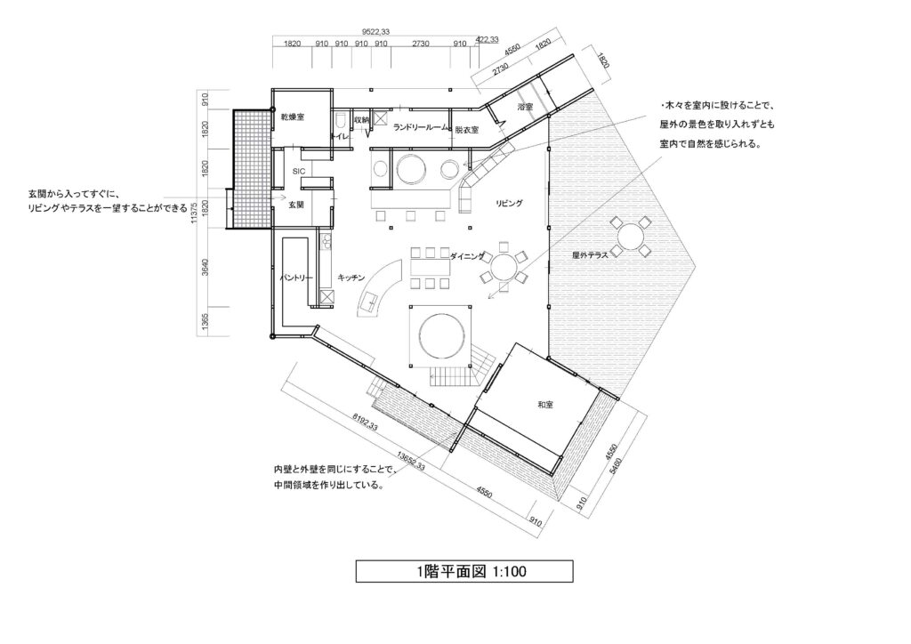
the Loop ~Biophilic architectural design~ 卒業展2023 グランプリ・SDGs賞
公森 大昌、武田 謙二 建築学科
都会の暮らしに“自然”は足りているか?人は“自然”に暮らせているだろうか?
「“自然“と繋がることで人間のストレスを緩和する」その点を考え抜いた建築を作りたかった。地上エリアは受動的な自然を享受する場、地下エリアは能動的に自然を享受する場である。
地上部中庭からの景観はどの角度からも緑視率30%以上に設定、緩やかなスキップフロアで構成された居住ユニットを自然の風が通ってゆく。
地下エリアでは天候や気候に左右されずに人々が活動する。外部に繋がる共用棟と集会所を設置する事で地域を巻き込だ大きな環境を造り出す。
自然・人・地域がこの建築を介して循環する。そんな想いを込めて「ループ」と名付けた。
【指導教員からの講評】
人は様々なストレスを抱えているが、特に都会に暮らす人たちのそれを緩和するには、日常とは異なる時空が必要である。この建築はLewin(1951) の場理論や千野(1991)のリミットサイクル理論等、人の心理学的動線を幾何学的にとらえた先行研究を基に、「緑の遊環構造」として循環機能、回遊性があること、またその循環は一様ではなく視線や形に変化を持たせ、光や風のショートカットなどを取り込んだ。限られた時間の中で、国際コンペへの参加と卒業設計を同時に成し遂げた夜間学生である作者たちに賛辞を贈りたい。 <見邨 佳朗>
Agritechture KOBE 卒業展2023 準グランプリ・SDGs賞
川口 大地 建築学科
農業は人と密接に繋がりをもっている。生活の糧である食料の生産は勿論のこと、種まきや収穫など祭りと結びつけて人と人の関係を繋ぐものとしても存在している。
しかし、日本の農業の現実を見てみると生産者の高齢化や農地の減少など様々な問題が多く存在している。
その中で、都市農業という観点に着目してみると今、そして未来へと大きく可能性を秘めていると言える。
都市における農業のあり方とは、誰もが想像する田園風景での農業とは異なり、都市気候、人の生み出す廃棄物、テクノロジーなどを大きく取り込み行われる農業である。そのような都市農業を建築と組み合わせ、さらに未来への農業の可能性を大きく膨らませる。
農業と建築と人との融合を目指した設計である。
【指導教員からの講評】
地方への若者回帰を促すことも重要な傍ら、人口が集中している場所でのUrbanFarmingに視点を当てた作品である。科学技術力の活用によりイノベーションを創出し食を発展させるスマート農業と、それらに必要な空間と住空間を融合させた建築を「Agritechture」として人口150万人を超える政令指定都市神戸で提案した。使用水量が従来の1/10という垂直農法を採用すること、自然・人口の両面から光の当て方、通気・換気を良好なものとするデザインにたどり着くまでに要した時間は、妥協しなかった作者の粘り強さを感じた。CLT構造を取り入れた考え方にも未来型融合が活かされている。 <見邨 佳朗>
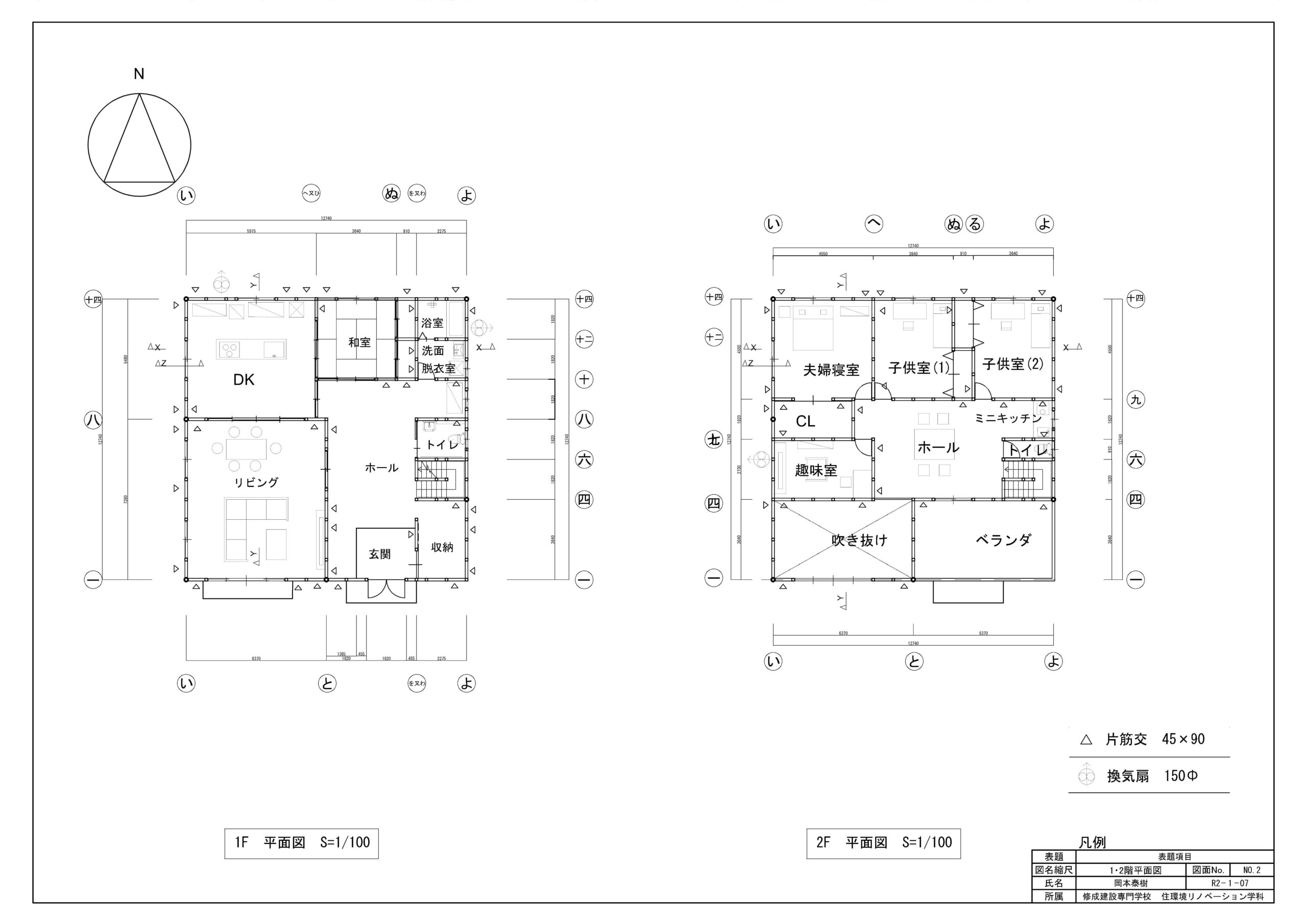
~山間部における準限界集落の再生~ 小径材で組む木造建築群 林郭 卒業展2023 準グランプリ
小倉 全勝 建築学科
準限界集落を舞台とし林業施設を計画、地域の復興をテーマとした。
建設には周辺で取れる木材を使用するが、一帯は未だ生育途中の山林であり、その多くは間伐材となる。構造材として扱いの難しい間伐材を小径材として製材し、組み合わせる事でその短所を見直した。
製材棟は材木を整形加工する場として。小径材とする事で手間がかかり雇用に繋がると共に、女性や高齢者も従事し易くなる。そこでは伝統技術の伝承が行われ、端材は家具や土産物等に加工、隣接の展示棟に。郊外より訪れた人々は製材棟から運ばれてきたそのままの作品を直に見、触れ、木の香りに包まれる…。地域の生業と連携できる実習棟は、森林組合主催の森林塾や民宿女将の伝統料理教室、林間学生の学びの場として。
地元愛はありながらも郊外に出ざるを得ない若者や、未だ燻る情熱に蓋をし「老い」に身を任せる人々らを繋ぐ建築、それが「林郭」である。
【指導教員からの講評】
過疎化・高齢化する「準限界集落」において、地域資源である木材、中でもこれまでは建築用材として極端に限定された使用のみであった間伐材の新たな活用に、地域の雇用を重ねて村の再生を目指した計画である。吉野材小径木を集合体として組み合わせ、構造材利用を目指し接合部は金物仕様とするのではなく、伝統工法の込栓を用いることにより地域独特の技能従事者やそこを目指す若者の雇用と結び付けようとした視点を評価した。この構造によってつくられた建築は、作業スペース・実習スペース・ふれあいスペースとして生業や新たな地域特性に対して波及することを予感させる。 <見邨 佳朗>
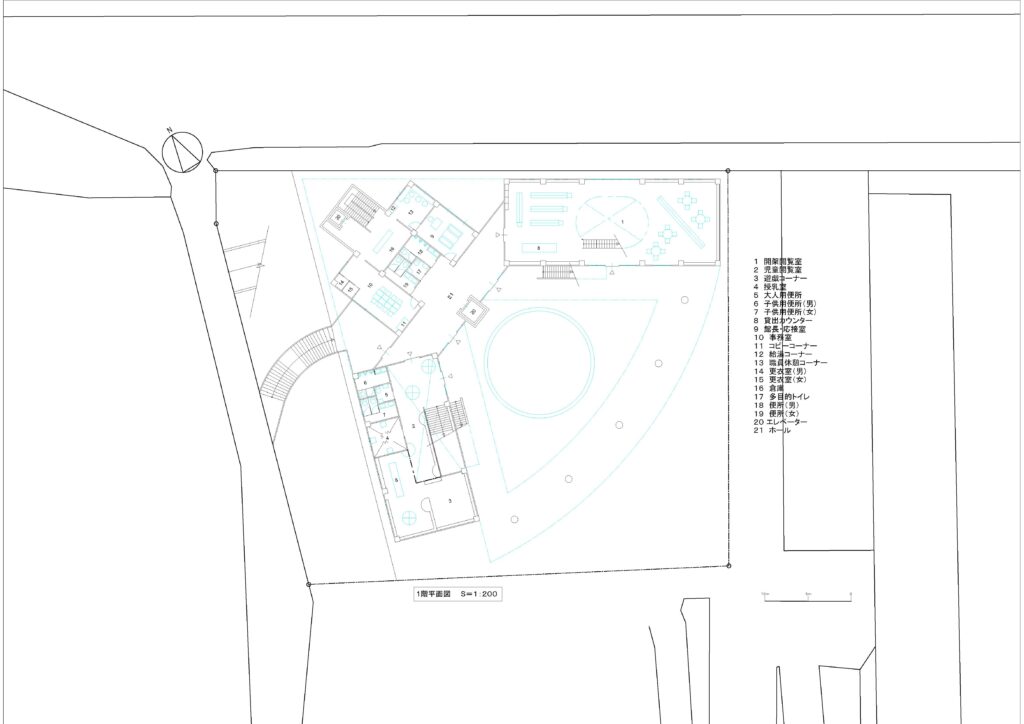
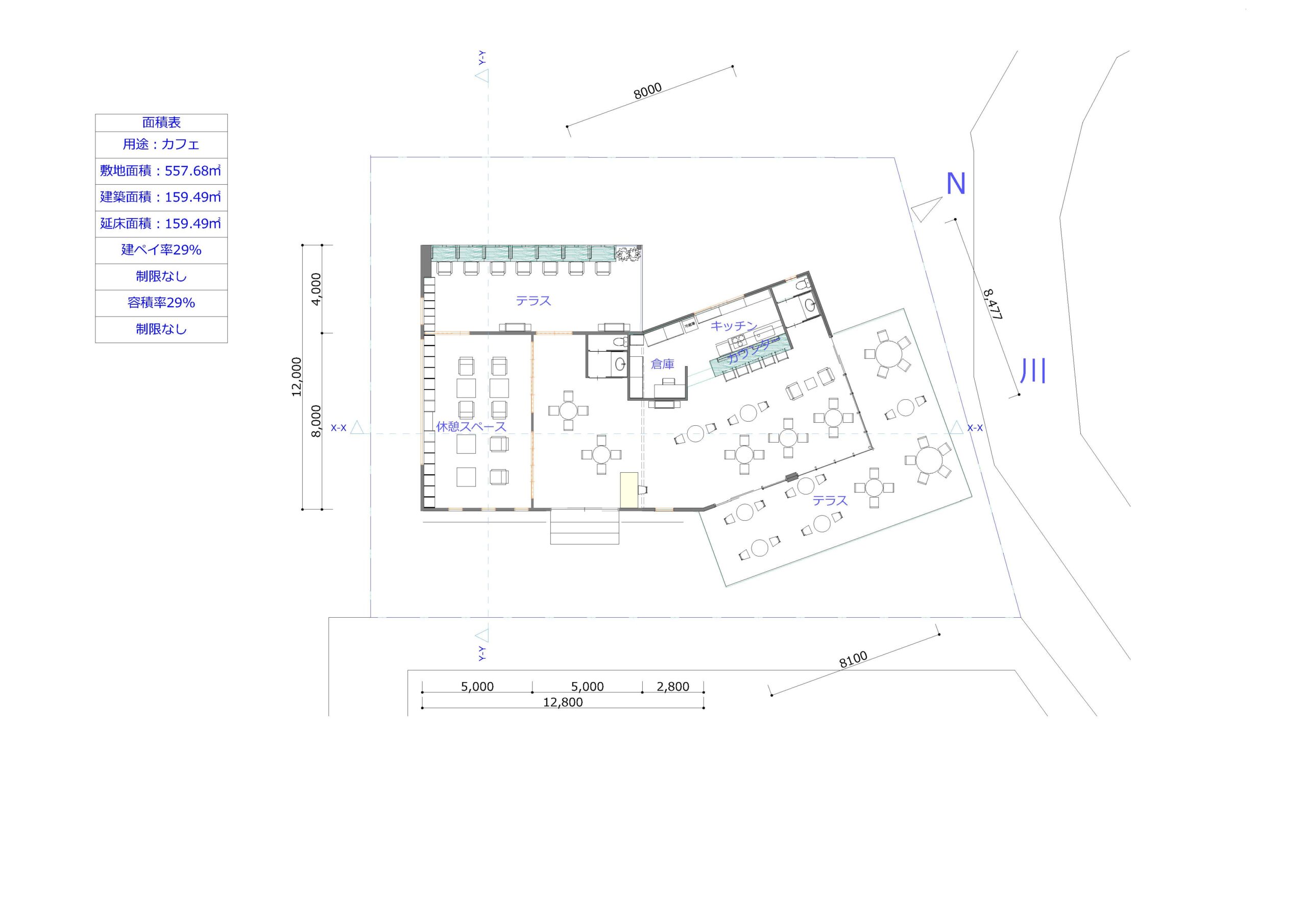
川と公園に面する地域図書館 Green island 卒業展2023 基本設計コース賞
大西 渥也 建築学科
屋外のテラスは川だけや公園だけが見えるのではなく、公園も川もどちらも面するように円弧の形にすることを意識した。
棟を用途ごとに分け、どのように配置するかを考えた時にただ単に不規則に配置するのではなく、軸を決めて規則正しく見栄えも綺麗になるようになることを意識した。屋根はただかけるだけではなく、緑化をすることで断熱材の役割を果たし、環境にも優しいつくりにし、吹き抜けを設けることで広場にも光が入るよう意識した。シンボルツリーのある広場には、ベンチを配置して、屋外のテラスには景色を見ながらコミュニケーションを取れるように椅子と机を配置しました
閉架書庫や図書受入整理室は地下に入れることで、来館者との動線が交錯しないように意識した。
【指導教員からの講評】
計画地は西淀川区の「ふれあい公園」に隣接しながら尚且つ「神崎川」沿いにある。ふれあいを期待する地域図書館としては恵まれた設定である。
図書館としての機能を3部門に分節しながら、外部空間と融合したところは明快で、川と公園に開く軸線の構成は、スタディー模型の段階から秀逸であった。
基本設計でありながら、ゼミ並みの担当教員とのやり取りに、奨励賞を与えたい! <青砥 聖逸>
裏と表の併存 ~渾然一体となる秘密基地クラスタ~ 卒業展2023 意匠設計コース賞・SDGs賞
川向 世瞳 建築学科
私は今回卒業設計で、「秘密基地」をテーマにして取り組みました。屋根裏部屋の様な無計画に出来てしまった空間こそ「秘密基地を誘発する空間」だと考え、設計しない秘密基地を提案しました。私は去年、意匠設計コースの卒業設計をお手伝いさせていただき、その先輩方のやる気に満ちた雰囲気や、切磋琢磨している関係性に憧れ意匠設計コースを選んだが、今年はなかなかその様な雰囲気にならずに終わってしまったのが心残りではあります。4月からは大学に編入するので、自分の世界を広げ、コンペなどにも挑戦し、さらに成長していきたいと考えています。
【指導教員からの講評】
魅力たっぷりの敷地を早々に発見し、まちづくりの視点に立ったテーマを設定した。指導教員と話し合いを繰り返し、審査会の度にブラッシュアップを重ねた。結果は申し分のない作品として結実した。残念だったのは、今年度は彼をより没入させてしまう環境をこちらが容易出来なかったこと。その不完全燃焼な部分を今後の大学での学びで燃やしてください。また、修成卒業までの期間でも燃やしてもらいます。 <田中 おと吉>
NATURE × ARTIFACT ~自然と人工物の共存~ 卒業展2023 自由設計コース賞
堀 熙 建築学科
技術の進歩が進むこの時代、街は人工物であふれ建物は次々と高層化している。それに反し、子供の頃生き物と触れ合った田畑は減少している。この現状から、緑を残して建物と共存させることはできないだろうかという考えから、今回のテーマを「自然と人工物の共存」としました。今回の作品では、地上30階建てという迫力を紙の上ではなく、目で感じれるよう、あえて1:150のスケールとし大きさを強調しました。時間をかけて一つのことにこつこつと向き合うことができた達成感を原動力にし、次のステップに上がっていこうと思います。
【指導教員からの講評】
学生が毎日の通学で使う再開発されている大阪梅田駅周辺の居心地の悪さを解消すべく、自然を感じられる憩い、休息の場となるような施設の提案です。計画地は経年からか新阪急ホテルが営業終了するというので、その建て替えとあわせた形での計画とした。 <稲原 泰裕>
明日へ 卒業展2023 景観まちづくりコース賞
岸田 和晃 建築学科
私がこの「明日へ」をテーマにした経緯は、コロナ禍でのストレスや孤独感・将来への不安を抱えた数多くの若者が、明日を生きる意味を見失い自ら命を絶つというニュースを見た事がきっかけでした。
今なお同じ状況で苦しんでいる方に一度立ち止まって、「生きる意味を思い出し、明日に繋げる」ということを建築で表現しました。
作品ではコロナ禍に対する若者をテーマの中心に据えましたが、この場所を利用する人の中には、悩みの種類や深さも万別であり、それが違えばこの建築の各エリアにおいて何を感じるかも多様だと思います。個々の悩みの大小に関係なくこの場所を出るときには、何か明日への光を感じ、生きる希望に繋がることを願います。
【指導教員からの講評】
G7における15才から20代の死因の第1位が「自殺」となっているのは日本のみである。こんなにも若者が生きづらい国なのか?独特の美意識がSOSを出せない子どもを増やしているのか?あるいは、「周りと同じじゃなきゃダメ」という日本社会に深く根付く同調圧力が問題なのか?など、この問題に対して、建築が地域とともに果たすことができる役割を模索した作品である。地元の慣れ親しんだ風景の中に、自己と向き合う・他者と語らう空間が、原点を見つめ直し明日への希望を見出せるものとなるよう、包み込む自然の中に複数の居場所として計画することとした。 <見邨 佳朗>
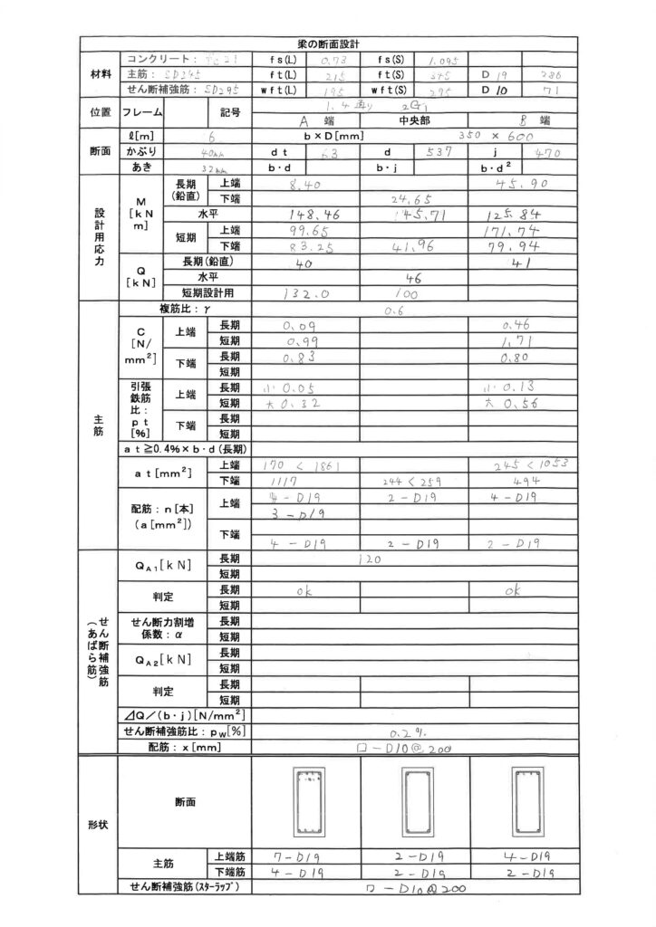
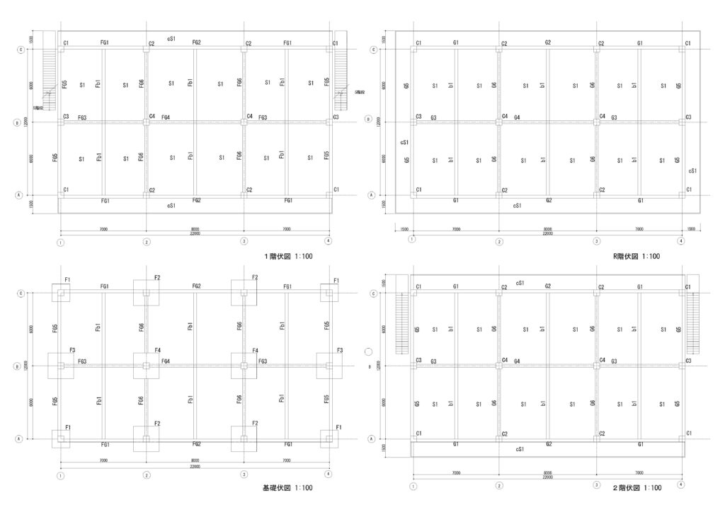
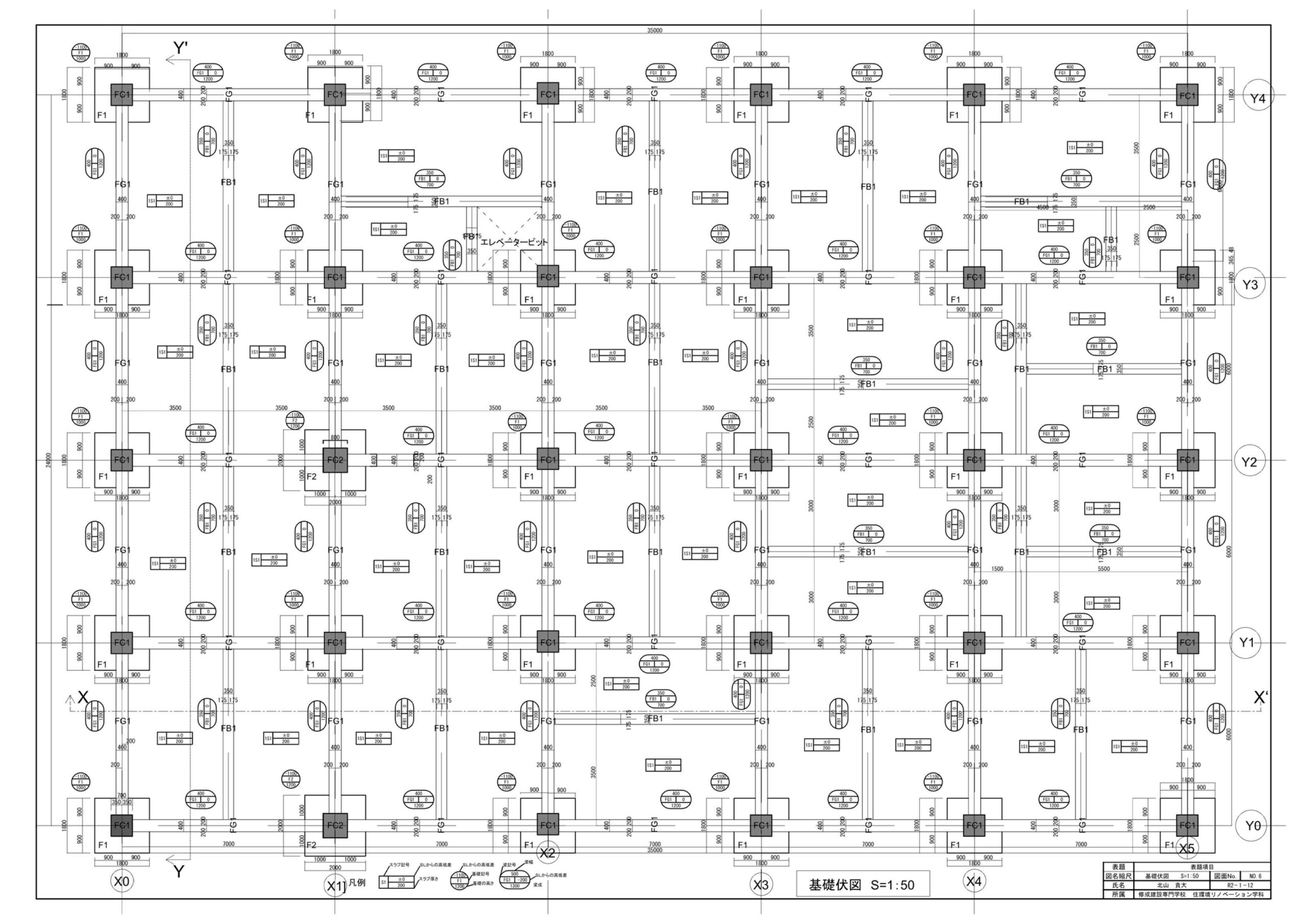
未来を守り抜く事務所 卒業展2023 構造コース賞
中村 勇翔 建築学科
「構造コース」では、「伏図と軸組図」を基にして、「準備計算」→「応力計算」→「断面設計」を経て、「架構配筋図」を作成しました。
準備計算として使用材料から荷重を求めることから始めました。
今回は建物を「事務所」として定め、実際にこの建物が使われると想定して慎重に計算を行いました。
そして、部材内部に生じる力として「応力計算」をしました。
更に、「大梁、柱、基礎」について、応力に抵抗できる必要な鉄筋の本数や間隔を決定しました。
最終目的である「架構配筋図」を鉄筋の必要本数、配筋ピッチを図面に表すことに成功しました。
この卒業設計を通して、構造設計とは構造計算を行うことによって安心、安全の住環境を人々に提供し、未来を守る大切なものだと思いました。
【指導教員からの講評】
『仕事をつなぐ』
「意匠設計」→「構造設計」→「施工生産」
建築学科:構造コースでは、建築の仕事を「つなぐ」ポジションでの「構造設計」を再現しました。
グループワーク(9月):設計方針→準備計算+伏図・軸組図作成
個人ワーク(10~12月):応力計算→断面設計→架構配筋図作成
ここでは、今まで学んだことを基に、計算と整理を繰り返し、設計を進めて行きました。
「点」であった知識が、「線・面」へとつながる経験を積めたのではないかと考えます。
(構造コース:9名を代表して)<荒木 伸輔>
森に潜むカフェ 卒業展2023 木造コース賞
福西 一 建築学科
近年、日本の少子高齢化により田舎などの地域での過疎化が進んでいて、若者が少なくなって地域の良さが少しずつなくなっていき、社会的機能が低下して行くという問題が増えてきています。卒業設計をするにあたって今回のテーマである「自然と一体になる場所」と合わせて、この問題に取り込んでいきたいと思いました。
計画地は熊本県阿蘇郡小国町にある鍋ケ滝という地域で、自然豊かな観光スポットとして有名な場所です。観光地である小国町は過疎化地域に指定されており、若い人達が来て地域の魅力を知ってもらうためには何を建てるべきかを検討し、私は若者に親しみやすいカフェを設計しました。ただカフェを建てるだけではその地域の魅力である自然豊かであると言うとこが伝わりにくいと考えたため、観光スポットである鍋ケ滝の端に計画し、観光地から地域全体を盛り上げていけるようにと思い、敷地の選択をしました。大きな空間で内部と外部を繋げたいと思い、建物構造はCLT工法としました。テーマでもある自然と一体となるようにテラスとカフェ室内でのスラブの高さを同じにすることで中間領域を作り中と外の空間を曖昧にすることで、どの場所でも自然を感じられるようになっています。
【指導教員からの講評】
熊本県の観光地でのCLTを構造に使ったカフェの計画。森の空気の香りの中、滝を眺めながら珈琲などを飲んだりしてくつろぐことができる空間と滝の音を聞きながら読書を楽しんだりする空間を作っている。それぞれで嗅覚、視覚、味覚、聴覚、触覚の五感の複数を刺激し、感覚を研ぎ澄ますことで心地良さの効果を向上させるとともに、それをより活かせるようにCLT構造を採用して大きな空間で内外を繋げて、立地条件をしっかりと採り込んだ作品としている。 <岡﨑 祐介>
PERCH -Zaatari camp- 卒業展2023 夜間・意匠設計コース賞
井上 香織 建築学科
留学中にスーダン人の友人と親しくなった。彼はスーダンの内戦から逃れ、現在は家族とマレーシアで暮らしている。生まれた場所を離れ、文化、言語、宗教における違いを受入れる過程では我々が想像もできない苦労があっただろう。
10代だった私は、いつかそんな人のために自分にできることを見つけたいとぼんやり考えていたが、社会人になりその気持ちが増していることに気が付いた。建築の知識を身に着けることにより、及ばずながら住む場所が必要な人の想いを実現したい・・・
悲痛だが、難民問題に終わりがくることは無いだろう。だからこそ、彼らが建築を通して帰る場所があると感じ、次の舞台で輝くまでの居場所を創ろうと思ったことが今回のテーマの根本にある。
【指導教員からの講評】
海外での生活経験を持ち、外国人に日本語を教える教員としても活躍するという彼女。初期の構想段階から「難民問題」に目を向けていた。
「可哀想」「お気の毒」ではなく、実行する力を身に付けたいと常に考えていた。
今回取り上げた「ザータリ難民キャンプ」は収容人員が膨らみ、一部ではスラム化する事態に陥っているそうだ。
彼らの暮らしを改善するには、あらゆる分野での援助が必要になるだろう。建築分野で可能な手立ては、可能な限り住まいを安全で快適なものへ近づけることだ。
今回彼女はその点に注視して、現地で調達可能な材料を用い加工し建築まで行える仕組みを提案している。さらにそれが彼らの収入へとつながり、原材料のリサイクルや建材のリユースなどSDGsの観点をも取り入れて全体のシステムを構築した。
建築の知識や技術を用い、地球上に残る困難な問題を解決していきたいという、彼女の高い志の決意が表された秀作である。 <角野 峰生>
安心を与える空間 卒業展2023
青木 歌音 建築学科
卒業設計で図面や模型を作成しました。そこで敷地を選ぶことが大切だということが分かりました。敷地周辺の調査や、敷地を選んだ理由を調べてつくることが大変でした。模型作りでは、敷地から建物まで作る難しさを知りました。建物の高低差やスロープを作るのに苦労しました。プレゼンテーションでは、資料をまとめることや、どうすれば見やすいパワーポイントが作れるのか考える事が大切だと分かりました。文字の大きさや色合い、画像の使い分けをうまくすることで見やすくなることが分かりました。他の人の作品を見て、凄い所や自分に出来てないことに気づくことが出来ました。
【指導教員からの講評】
卒業設計のポイントは地域性の見聞と建築としての提案力にあると思っています。元は田んぼであっただろう土地に、新興住宅地として開発された何の変哲もない街づくりに疑問を関したところを評価したい作品です。地形的にもシンボルとなる小山をつくることから始まる「地域住民の交流」と「行ってみたい居場所づくり」は、街づくりに一石を投じる提案となることでしょう。 <青砥 聖逸>
Inheritance 〜戦争の記憶〜 卒業展2023
上田 直輝 建築学科
今まで戦争について学んできましたが、教科書や映画の世界の話で、実際に経験したことが無く現実味がありませんでした。しかし、ウクライナとロシアの戦争が始まり、初めて同じ世界で起こっていることだという事を実感し、日本に住む自分も関係ない話ではないのだと実感しました。そこで戦争について改めて考える必要があると思いテーマとして選定しました。
この作品を通して、鶉野飛行場で戦った人々の歴史を知り、同じ飛行場に立ち、同じ年の人達は、どのような空を見ていたのか考えること、現在日本人として平和に過ごせていることに気づき、戦争について今一度しっかり考えることを忘れず、次世代へ記憶を継承し続けていくような作品になれば良いと思います。
【指導教員からの講評】
平和と思っていたこの時代に於いて「戦争」と言う危機迫る世界情勢から、初めてその事実を意識した作品である。卒業設計のテーマ探しの機会が問題定義を生み出し、小野市にあった特攻隊の跡地に着目したところに感心した。建築デザインとしては美し過ぎるとの意見もあるだろうが、作者の優れた表現力に感銘を受けた。「平和」を願うこの作品が実現することを願うばかりである。 <青砥 聖逸>
切り取られた時間の中で 卒業展2023
池本 慎之介 建築学科
私が今回取り上げた題材である「これからの商店街のあり方」はよく卒業設計で取り上げられているテーマかと思います。少子高齢化や時代の流れによる買い物をする場所の変化などから利用者数が減少し、立退を要求されマンションを建てられてしまう。今回私が選んだ敷地である、二宮市場もこのような時代の流れにのまれてしまい現在残っているお店も5店舗となっていました。シャッター街となってしまっている二宮市場ですが、そこにはどこか懐かしさを感じさせる空間が残っており、その懐かしさをうまく利用してできるだけ二宮市場の形を変えずに残すことができたらと思い取り組みました。商店街を残す意味と「懐かしさ」をどのようにして形にすると今の時代、これからの時代に適応していくのかを考えるのが難しいテーマでした。
【指導教員からの講評】
全国的に問題化している「空き家問題」、特に「シャッター商店街」に注視した課題に取り組んでいる。これまで卒業設計のテーマとして「青砥ゼミ」では何度かこの問題解決にチャレンジしてくれる学生がいた中、今回は落書きされたシャッターを一部残す等しながら、幼年期のノスタルジーを、現代人に伝える空間づくりに特色がある。 <青砥 聖逸>
時雨の拠り所 卒業展2023
林 勇冴 建築学科
卒業設計とはなんだったのだろう。私は未だにふと考えます。
春、気ままに絵を描いていた。ほどなくして意匠設計コースの案内が来た。苦い気持ちとは裏腹におと吉ゼミに入れたのは内心すごく嬉しかった。
夏、興味のあることをテーマにすることができず熱中についての課題を出された。全然わからない。
雨が降っていた。授業は遅刻だがなんとなく気分がいい。テーマは雨にした。少し飽きていたしそれもバレていたが実際雨は好きだったのでゴリ押した。
初回プレゼン欠席になってしまったことに嫌気が差していた。
秋、体調は戻せずにいながら最高傑作を持って次の中間に望んだ。
全く伝わらなかったことに混乱していた。しかし急遽開催となった第三次にむけ今まで以上に観察をしたり、視点を変えたり、妄想をはかどらせたりしながら4つの要素模型を制作した。
前回とは打って変わりすごくうまくいった。周りも考え方に癖が出ていた。あとは形だけ。あと一ヶ月と少し。
冬、あとは形だけ、あと一ヶ月、すごいものを作りたい、設定した敷地は、住宅街の静かに癖のある公園。デカいのを作りたい。
熱が出た。
何がしたかったんだろう。なにか成長したのか。そんな時話したくもないであろうはずの友人は、もう一度引っ張ってくれた。最後までやりきろう。その時には、友人と話す中で一つの結論が出ていた。卒業設計とは、これから生きていく中でいままでを未来に活かせるようになるための考え方を養う機会だったのだと感じた。
これは主観による一つの捉え方かもしれません。しかし卒業設計を通して、何気なく描いてきた絵のような経験を将来への糧にする手段と捉え頑張りたいと思えるようになれたと感じます。この雰囲気だけの肌触りの悪い感想文さえも無駄にしません。
【指導教員からの講評】
雨をテーマに心象風景の建築化に取り組んだ。今後の進路についての葛藤もあり、自らの思いが投影された作品となった。コース内の審査会では建築的用途が必要と指摘されたが、最後まで頑固に自分の意思を貫いた。終盤になり制作に集中できず、詰めの甘いプレゼンとなったが、何とかゴールに辿り着いた経験を今後に活かして欲しい。 <田中 おと吉>
架け橋となる場所 ~新たな出会いとこれからの当たり前~ 卒業展2023
竹内 匠 建築学科
地元の廃校を再利用したいという思いから、廃校を利用した障がいについて知るための施設作りを行った。
建物内部に、障がいについての展示スペース、体験スペースをつくり、障がいに触れてもらうきっかけを作ると共に、屋外にはスロープを設け、段差による移動のしにくさを解消した。
作るにあたって、どのようにアプローチすれば良いか迷いながら取り組んだが、自分の中での答えを出すことが出来たと感じた。
【指導教員からの講評】
廃校を抱えた地域という大きな枠組みを再活用し、聴力障がいを持った家族という小さな集まりにとって居心地のいい場所を作るという明確な目標をたてて始まった。真摯に取り組み着実に進展を見せるものの、最終的な仕上がりは指導教員の想定していたところには達していない。
彼は大学へ進むのでまだ時間がある。それまで、引き続き指導は続きます。 <田中 おと吉>
宇宙の駅 卒業展2023
後藤 花音 建築学科
何故⼈類は宇宙を⽬指すのだろうか。
⼈は常に進化していき新しい発⾒や技術・知識を求める。
宇宙を⽬指す理由もそこにあるのではないだろうか。
1969年7⽉20⽇、アポロ11号が⼈類初の⽉⾯着陸を成し遂げた。それは⼈類の⼤きな進
化であり、そこで使われた技術が私達の⽣活の⼀部となっている。
そして今、⼈類の新たな試みとして『⽕星移住化計画』が進められている。
⽕星へと旅⽴つのはとても⻑く過酷な道のりとなるだろう。旅⼈は宇宙という極限空間の
中で激しい精神的ストレスや不安に駆られることが予想される。
そこで、⽕星を⽬指す中継地点の『⽉』に⼀度拠点を置くことで、宇宙⾶⾏⼠の精神的スト
レスの緩和や⽕星への⻑旅の準備、⽣活のシミュレーション、訓練ができる場所を考えた。
この計画から私たちが住む地球を再度⾒つめ直すきっかけになることを期待したい。
【指導教員からの講評】
最近、いつ空を見上げただろうか?空の美しさや空に浮かぶ星の瞬きを観察して、遠い空の向こうの世界を想像する。人類はどこからきたのか。そんな根源的な問いが宇宙には隠されているのではないだろうか。
本作品は火星移住を見据え、月中継地点とした面下都市の計画である。「宇宙飛行士の生活」に焦点をあて、長旅よる精神的ストレスの緩和や火星を目指すための訓練などを行う施設等が用意され、火星での生活をシミュレーションできる。気候変動による異常気象など地球環境の変化が著しい昨今において、宇宙での生活を遠い「みらい」のことではなく、「いま」のこととして現実の世界に一歩近づけて捉えている視点がこれからの可能性を期待させる。 <邊見 栄俊>
Back To Nature 卒業展2023
メリアナ タンディ 建築学科
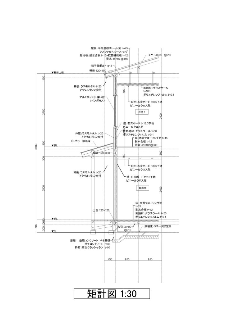
インドネシアの西パプア県にあるワイサイ島での別荘計画である。オーナーを含めて、2~3家族くらいが過ごせる規模で設計しました。この島は緑豊かな山と青く透明な海が有名である。建物のエントランス側には海と空が広がり、逆側には森林と山がある。この別荘で心地良く過ごせるように開放的な空間をつくり、外の景色と中の空間が繋がり、境界を感じないように配慮して計画しています。部屋の位置によって、切り取られる景色も異なり、部屋それぞれの繋がる場所に変化も持たせました。大変だった点は各部屋の配置やそれぞれの室同士の関係性で、なぜそこに配置するのかの理由、同線をいかに短くするかの検討でした。木造設計コースでは木造建築物を建てるための知識を学ぶことができ、特に在来工法の構造や矩計図の知識を深めることができました。
【指導教員からの講評】
母国インドネシアでの別荘の計画。
気候や敷地条件を考慮しながら外部空間を採り入れて、木造コースのテーマとして設けた心地良い「中間領域(内部と外部のグラデーション/内部のような外部、外部のような内部)」をいかに表現するかがポイントであった。在来工法を選択し、構造的な縛りがある中で高床とした気候や環境への対策と中庭の内部のような外部空間、室内に水の流れを採り入れた外部のような内部空間、海の見える外への繋がりをもった大開口で心地良い計画を完成させた。 <岡﨑 祐介>
木と過ごす軽井沢の別荘 卒業展2023
吉村 歩 建築学科
テーマは「玄関からの驚きを」です。
1階には、LDKや浴室、和室、玄関など複数部屋があり、LDKを中心にして、玄関からリビングが広がっていくように和室や浴室を配置しています。そうすることによって、LDKの空間を広く保つことや外部の景色を多く取り入れることができるようにしました。初めてこの別荘に入ったときに、玄関から広々としたリビング空間や室内の木々、外部の景色を一望して、あっと驚きを与えるとともに、自然をより豊かに感じることができ、広々と快適に過ごせる別荘です。
【指導教員からの講評】
軽井沢での別荘の計画。隣地との関係から外部を採りこむところと視線を遮るところをつくって、うまくバランスを取りながらプライバシーの部分にも配慮した間取りとなっている。中間領域をつくる上で外からの視線等の問題となる部分をどのように攻略するかがポイントとなるが、現実的なところもキチンと考え、クリアできているところが評価できる。理想を持ちながら、完成時の状況もリアルに想像できるそんなバランス感覚を磨くことは実務でも役立つスキルになっているでしょう。 <岡﨑 祐介>
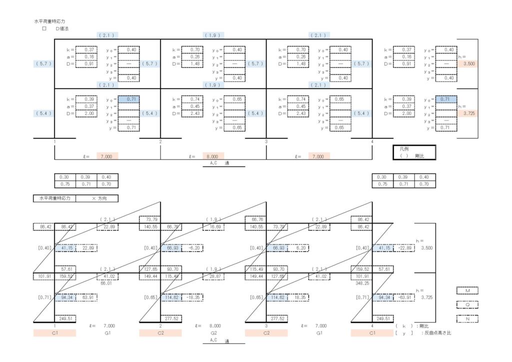
HNAビルの構造設計 卒業展2023
中井 晨陽 建築学科
卒業設計「構造コース」
□取り組んだこと
①「伏図&軸組図」から「荷重」を計算する
②「部材(大梁・柱)内部に生じる力(曲げモーメント・せん断力・軸方向力)」を求める
③ 大梁は、「曲げモーメント」から「主筋の本数」を求める
④ 柱は、「軸方向力&曲げモーメント」から「主筋の本数」を求める
⑤ 大梁の帯筋は、「せん断力」から「帯筋の間隔」を決める
⑥ 柱の肋筋は、「せん断力」から「肋筋の間隔」を決める
□学んだこと
① 「鉄筋の本数・間隔」は、部材内部に生じる力に抵抗するように計算される。
② 即ち、「鉄筋の本数・間隔」は、荷重や部材の長さによって決まることになる。
③ ゆえに、架構(骨組)によって、建物の剛性は保たれることになる。
④ 特に、水平力(地震・台風)に対しては、壁(耐震壁)が有効となる。
【指導教員からの講評】
『架構と空間の合一』
意匠を施工(実現)に向かわせる要素として「構造」のバランス・余力・吟味を考えることが必要です。そこで、RC造の伏図・軸組図から構造設計を実施し、最適な断面寸法に対する材料と数量の決定を試みました。 そこには、意匠系の友と構造系の自分で協働する未来の姿と知識・技術の習得に励む現在の姿が交差する良き物語がありました。(構造コース:9名を代表して) <荒木 伸輔>
老若男女みんなが楽しめる緑の丘 卒業展2023
大坪 咲希 建築学科
私は、子どもも大人も楽しめる図書館というテーマを掲げ卒業設計を始めました。そして、計画敷地は藤井寺市のほぼ中央、市民総合体育館に隣接する運動場にしました。現在藤井寺市で抱えている問題解決を中心に、貴重な観光資源を有する市の魅力などを再発見し、市全体が活性化することを目的としました。私が生まれてから20年間、暮らし続けてきた町について広く認識され、訪問者数、在住者数が増加し、町にさらなる賑わいをもたらしてくれることを期待して、このような卒業設計を考えました。
【指導教員からの講評】
制作者の出身地である藤井寺市が抱える問題の解決をテーマにした作品です。建物計画や敷地選定など、在住者ならではの視点で捉えた部分もみられ、馴染みのある地元に対してもしっかりと考察していることが伝わります。細部まで色々な考えを巡らせてはいるものの、それらを図面や模型などで表現するまでに至らなかったことは少し残念です。 <福山 亮介>
温泉ホテル 卒業展2023
WANG XIN 建築学科
この作品は、中国海南省を舞台としてデザインした作品です。海南島は日本の沖縄と同じように海に囲まれた島であるため、熱帯性気候、温泉、火山など、独特の地理的環境が数多くあります。海南の観光産業の発展をどのように促進するかは、地元住民の収入を増やすためのホットな話題です。このデザインの主な目的は、アーキテクチャを使用して望ましいランドマーク ホテルを作成する方法です。 1階と2階にはガラスを多用し、透明感のあるパブリックスペースを演出。 3階と4階は主にホテル客室として計画し、ゲストのプライバシーを可能な限り保護します。空間全体視野の透過性も、空気の循環と照明の必要性を考慮に入れ、自然との調和というデザイン コンセプトを最大限に実現します。
【指導教員からの講評】
中国南部の海口市は近年、都市型リゾート地としての開発が進み、ホテルや共同住宅などの超高層建築物が林立する地域となっています。その中で高層化を避けた環境配慮型の建物とすることで、他とは一線を画す計画の提案です。建物用途や構成などの基本的な部分に加え、意匠面や構造面などにも自身の考えを行き渡らせ、CG検討を同時に進めるなど、実務的な進め方が結実した作品です。 <福山 亮介>
廃墟が織りなす想起 ~数千年先の未来まで~ 卒業展2023
渡部 丈太郎 建築学科
私は、卒業制作にあたり自分の想いや日々の事柄をまとめていくうちに、自分自身では気づけなかった新たな自分を見つけることができました。私は、卒業制作作品をそんな自分の特性を活かし表現した建築を学ぶ学生としての集大成である作品と言えるものにしようと努めました。
制作中は、様々な課題にぶつかり向き合いました。その際に建築というものは単に思いつきでできるものではなく、緻密に計算されてそれぞれの要因に工夫が凝らされていることがわかりました。そして、建築は人と人とが繋がり助け合いながら行うことだと理解できました。
今回卒業制作で学んだことや経験を今後も活かし、建築の道を進む者として自分の特性を取り入れながらも人々が活用できる意味のある設計、ものづくりをしたいと思います。
【指導教員からの講評】
制作者の出身地である愛媛県今治市を計画地とした提案である。
地元をこよなく愛する彼は、休みが取れると必ずと言っていいほど、否、必ず今治に帰省する。
学校のある大阪に一人で暮らす。だがどうも水が合わない。地元の友人や仲間と過ごす時間が一定期間ごとに必要だ。
都会で精神の安定を保ち、健康に暮らしていくために、彼は故郷へ帰る。
都会から地方都市へ帰ることで、見えてきたことがある。暮らし慣れた町は少し寂しげで閑散としている所がある。建築を学んだことが気づきになった。
少し調べると、故郷は都会に負けない魅力と歴史があり、発展し続けることが出来る素質をもつ町だということが、すぐにわかった。
全国有数の港湾都市として栄え、独自の産業も発展した。にぎやかな商店街には人があふれる時代があった。
発展し続けることのできる持続可能な町を目指して、彼の愛する故郷に彼独特の着想で建築をつくった。 <角野 峰生>
山の可能性 -Tegara Mount Market- 卒業展2023
福本 千裕 建築学科
私の地元、姫路市にある手柄山は水族館や植物園など様々な施設があります。しかし人影もまばらで少し寂れた雰囲気になっています。一帯には取り壊しもされずに立ち入り禁止のまま残された建築物も数多くあります。これらの背景には施設開館当時に比べて山の魅力が低下して、訪れる人が減少していることが考えられます。
手柄山をふたたび地域住民が訪れ、楽しく利用できるよう、魅力度を向上させる構想を提案します。
手柄山の頂上にある慰霊塔前の広場には地域の人びとが集まって楽しめる、仮設の空間を計画しました。
費用をかけて大きな建物を建てずに、用途ごとに簡易的な仮設小屋を建てます。オープンエアな空間をフレキシブルに利用することで、多様な楽しみ方が生まれる場所作りを目指しました。慰霊塔前の広場には季節や時刻によって変わる屋台を置き、市が開かれます。地域の人びとが交流を深め、そして手柄山を楽しむ山の可能性について私なりに考えて制作しました。
【指導教員からの講評】
敷地の選定はすぐに決めることが出来た。
姫路市民なら一度は訪れたことがあるという、山の公園だ。
山には様々な施設があり、幼いころに遊びに連れて行ってもらった記憶が残る。
少し大人になってから、わかったことがある。
幼いころに楽しめた数々の施設も、陳腐化して色褪せてしまった。
今の子供たちには、もっと刺激的で関心を引く場所やものがある。
山の魅力は低下していた。
堅牢で強固な建築をつくるのは違う。
軽やかで柔軟な仮設建築や設えが、季節ごとの衣替えのように山を装う。
山の魅力を引き立て、地域から愛される公園を目指した。
女性らしい視点に立ち、仮設物を軽々と魅力的に造形し表現した。
粘り強く作品に向き合い、慈しむ姿がとても美しい。 <角野 峰生>
日本酒と用途と共に変化する 卒業展2023
河野 乙葉 建築学科
私の地元西宮では、日本酒が特産物で幼い頃から酒蔵がいつもの風景でした。
近年では日本酒の消費量が年々減り、酒蔵が無くなり酒蔵の跡地に家電量販店が出来るなど、どこにでもある風景に変わってきています。
西宮らしい風景が無くなってきているため、酒蔵の跡地に日本酒を作る時の道具を作る前に木を乾かす“ばい”の形状と日本酒を二階に持ち上げる際に使う“あみだ車”の八角形モチーフにした仮設物で西宮らしさを表現しました。
また変化が無いと飽きてきたり、使う用途が定められてしまうと使用する事が減少し破壊へ繋がってしまうので、用途に合わせて変化する仮設物を作ろうと思いました。
【指導教員からの講評】
室町時代からつづく酒造りの町。西宮が好きだ。
美しい水と六甲おろしで吹く風が、酒造りの風土に適した。
酒蔵の跡地を利用して「日本酒」をキーワードに日本人の暮らしに寄り添う、場づくりを提案する。
日本酒造りに必要な道具や、機械をモチーフにした材料を用いて施設をつくる。
部材を組み替えることで、施設の規模や形を変化させることが出来る。
日本酒が欠かせない「祭り」での山車や鉾を建てる時のように、町衆が集まり場を造りだす。
時には祝いを、時には弔いの場として。
ハレの場、ケの場を自在に造り、「日本酒」を振る舞い、人々が集う。
「日本酒」の良さを伝えるイベントや公演を行うための施設にも。
記憶に残り続ける魅力的な酒蔵の町として、制作者の愛情深い視点が、地元の特産品である「日本酒」をとおして、地域活性の提案につながった。
モチーフの選定や造形の独自のアイデアは、瑞々しい彼女の感性が存分に発揮されたものだ。 <角野 峰生>
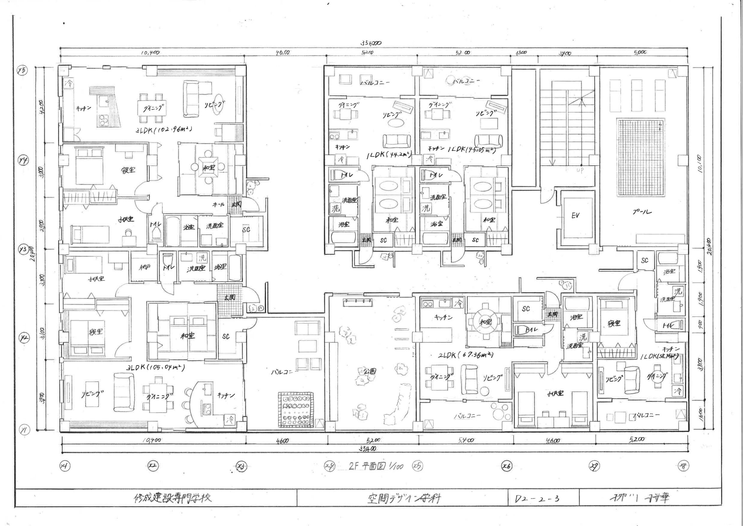
花萌葱の里 卒業展2023 BIM基本コース賞
高 春華 建築CGデザイン学科
日本では、高齢化は大きな社会問題となっている。調査によると、老後の不安の理由の上位3位は「病気・けが」、「経済的負担」、「介護」となっている。また、日本の高齢化は2042年頃にピークを迎えるため、今後介護施設は増設が必要となることが予想される。一方で、新型コロナウイルス感染拡大により、自宅で過ごす時間が増え、ペットに癒しを求めて犬や猫などを飼う人も増えている。しかし、世話をするのが負担になり、飼育を放棄する例も起きている。この2つの問題を解決するために、ペットホテルを併設した老人ホームを設計した。ペットを飼うことに疲れた時には、ペットホテルに預けることで、飼い主のストレスを軽減する。また、ペットの世話は認知症予防に有効とされている。老人ホームの入居者はペットの世話をすることで施設内通貨「シード」を獲得できる。入居者はその「シード」を使って趣味の教室に参加したり、嗜好品を購入したりすることで老人ホームでの生活を楽しめるような仕組みの老人ホームです。
【指導教員からの講評】
コロナによって在宅時間が増えたことで安易な気持ちでペットを購入したが育てられずに飼育放棄されているという社会問題と高齢化問題は日本において大きな社会問題である。その2つを解決すべく老人ホームに新しいシステムを導入することを提案した作品です。ペットのお世話をすることで施設内通貨が貰えるだけでなく、ペットは高齢者にとって認知症の予防などにもつながるため、この2つを組み合わせたところがこの作品の評価すべき点である。 <玉井 香里>
日常の中の図書館 卒業展2023 CG設計コース賞
中田 小百合 建築CGデザイン学科
街中にたつ建物なので、 人々の日常の一部となるような図書館を考えました。
隣接する遊歩道や公園の雰囲気になじむような外観にしました。
図書館は本を読む以外に自習や休息に使われます。特に学校や仕事帰りに静かな自習スペースを求めているかたは多く見受けられます。そのため、 閲覧室やカフェに席を多く設け一人でも入りやすいように計画しました。
卒業設計に取り掛かり始めてからプランの変更を重ね大変な時もありましたが自分 の成長にもつながり、 納得がいく作品ができてよかったです。
【指導教員からの講評】
地域に溶け込む図書館の設計。
コンセプトに沿った計画で、主張しすぎず、地域住人や利用者が気軽に立ち寄れる雰囲気を大切にした設計ができている。
利用目的別のアクセスができる動線を確保しているため、利用者にとって使いやすい図書館となっている。 <岡部 優季>
Conect 卒業展2023 CGデザインコース賞
生賀 玲良 建築CGデザイン学科
私は「公園への通り道」というテーマで今回の卒業設計に取り組みました。公園の利用者にも本の素晴らしさを知ってもらいたい。公園に行く際に、広告のように本に興味を持ってもらいたい。この2つの理由からこのテーマにしました。通路から公園にどのように通り抜けれるか。またそこから見える景色はどのような感じなのか。1階と2階のつながり。それらをCGを基に想像しながら見てもらいたいです。
【指導教員からの講評】
図書館(本)と地域(利用者や周辺住人)の接点を通り抜けるという動作でつなげる(Conectする)発想が面白い。
通り抜けができる設計の為、通勤・通学の近道にもなり、今まで図書館や本に興味のなかった人も取り込める。
図書館でもあり通り道でもある。2つの異なる機能が融合した設計となっている。 <岡部 優季>
そのとおり。 卒業展2023 空間ディプロマコース賞
山浦 莉弥 空間デザイン学科
私の卒業設計は、人間と自然の共生について問うような作品です。
現在いたるところで都市開発が進む中で、反対に自然環境はどんどん破壊されているのではないでしょうか。
計画地である隠岐の島は、様々な歴史を経て独自の生態系を持つ自然豊かな島です。隠岐の島の生態系を守るために、今までのような人間と自然が平面的に重なる環境ではなく立体的に重なる"層"となり、互いに干渉せず繁栄していく。そんな共生のあり方を考えました。
また、発電方法やマテリアルについても、再生可能や循環型のものにすることでSDGsとも密接した作品となりました。地球の課題である環境問題を完全に解決することは難しいと思います。
私の卒業設計を通して、みなさんにも「人間と自然がうまく付き合っていくためにはどうすれば良いのか」を考えていただけたら嬉しいです。
【指導教員からの講評】
隠岐の島は本州南西部の島根半島の北の日本海に位置します。島後水道を境に島前(どうぜん)と島後(どうご)に分けられ、隠岐諸島および海岸から1 kmの海域を合わせた、673.5 km2の範囲を「隠岐ユネスコ世界ジオパーク」として、認定されています。
そんな自然豊かな島も人口減少、高齢化、無秩序な開発によってすこしずつ本来とは異なった島のカタチになってきています。彼女は祖母の出身地で幼少期の思い出もある島の未来を憂いて、この卒業設計をまとめ上げました。現地で樹木を計測し、固有の動植物を調査や現地の人々のインタビューを重ねる、ひたむきなその愛情がありがちな共存ではない人類と自然との共生をみたこともない手法で完成させました。 <眞野 サトル>
動物と共存するマンション 卒業展2023 インテリアコース賞
栁川 桜華 空間デザイン学科
「私が住みたいマンション」を理想とし敷地付近の地域問題を考えながら計画しました。
「猫にエサを与えないで下さい」敷地の近くにこういった張り紙がありました。この近くでは野良猫を多く見かけることもあり実際こういう張り紙があると言うことは住み着く猫に対して被害を受けている人がいるということです。そこで、この問題をどうにか解決できないかと考えました。
マンション敷地の近くには学校があるので学校帰りに子供たちが寄りやすい場所として農園をつくり、そこで栽培したものを街の方に売ってお金にし、去勢手術の費用や怪我の治療費用にする。ここで地域の方々との交流場所とし動物教育や大切さを学べる場所としました。今いる野良猫たちが大切にされるそんな場所があればなと思い計画しました。
マンションの全部屋プランを変えているのでぜひそこも見てもらえれば嬉しいです。
【指導教員からの講評】
SDGs解決への提案を含んだ、コミュニティホールを内包した集合住宅という設計課題に対し、「地域の動物問題」解決の手法として、住人がコミュニティ全体で地域動物と共生できる機能と仕組みを提案している。特筆すべき点は住戸プランニングで、生活の細部までしっかりと想像力を働かせた計画案はとても楽しい平面計画となっている。作者が卒業設計を通じて建築を学ぶことの楽しさを再認識し、インテリアコースらしい細やかな配慮がなされている点を評価した。 <鍵谷 啓太>
ぷらす + 卒業展2023 空間基本設計コース賞
西岡 樹那 空間デザイン学科
今回の卒業設計の計画地は、緑が少なく、駅の近くだから人通りはあるものの溜まり場となる場所では無いと私は感じました。そこで緑を、笑顔を、安らぎを、すべての街の人に何かがぷらすになるように。というコンセプトに思いを込めて設計しました。緑が感じられるように、コミュニティホールと集合住宅を別棟にし、エントランスと集合住宅部分には大きな吹き抜けを。その吹き抜けに木が突き抜けているようにする事で外観からも内観からも木を感じられると思いました。約10mほどの木を植えます。
またコミュニティホールにはホールと各部屋に天窓を設け、その下は土で植物が育っている仕掛けにしました。太陽のエネルギーが届くでしょう。
また、植物の肥料として、シェアキッチンで出た生ゴミ(卵の殻、野菜の皮など)を使います。この内容がSDGsの7番と15番に繋がるようにしました。
エントランスに拘りました。住宅部門とコミュニティ部門を完全に分けなければいけなかったので、壁で仕切るのではなく、エントランスに植えている木の周りに立ち上がる水を設置する事で窮屈なエントランスになる事を防ぎました。模型で是非見てください。
【指導教員からの講評】
特に緑の少ない街並みにコミュニティホールのある集合住宅の計画であるが彼女はそんな現地をみてすぐにもっと植物があったら良いのにと思ったそうだ。住居とコミュニティゾーンをしっかりと区画するのではなく緩やかにつながりを持たせどちらの利用者にとっても潤いのある計画となった。いたるところに植栽がなされ生活者だけでなく近隣にも配慮がなされているところが素晴らしい。 <眞野 サトル>
HAPTIC-触覚 卒業展2023
和田 ほの香 空間デザイン学科
私は触覚をテーマに卒業設計に取り組みました。
私たちが生活している中で必要なのが五感です。五感の中でも誰もが失っていない機能が触覚だと考えてます。人間全員が持っている触覚を使って全員が同じやり方で同じ感覚を味わう事ができる図書館を設計しました。ここまで来るのにとても悩み、考え、私自身やりたいことを見失ってしまったりしましたが私はこのような社会問題にはとても興味がありこれからも考えていこうと思いました。
【指導教員からの講評】
障害のある人も、そうでない人も当たり前に暮らしていける、そんな社会になってほしいと彼女は本気で考えています。ただのバリアフリーやユニバーサルデザインという手法ではなくもっと感覚的なものを。そういう思いでこの計画は生きています。ある感覚が麻痺してもそれ以外の感覚を共有することで同じ体験ができる、そんなユニークな建築(図書館)をぜひ体感してください。 <眞野 サトル>
unis. re: 卒業展2023
春木 彩花 空間デザイン学科
私の卒業設計は音×建築をテーマにした作品です。
兵庫県神戸市の都心、三宮は今再開発が進められています。駅前再開発はどこの街でも特徴のない同じような計画がされていて、街の雰囲気や街らしさ、風情がありません。その場所にあった再開発のあり方を考え直します。その瞬間、その場所にしかない音、そんな音を使ったまちづくりを計画しました。
音と建築を合わせるというのは難しく、沢山悩み大変でしたが、自分がやりたいと思った事を出来てとてもいい経験となりました。
【指導教員からの講評】
神戸市三宮エリアは今後30年間で150棟のビル建て替え計画が官民一体で進んでいる。ただしその計画はどこにでもあるような駅前再開発の手法がなされ神戸らしい特徴のある開発とはなっていない。特に2029年にJR三ノ宮駅ビルおよび三宮周辺の再整備で新駅ビルが誕生するが人と街をつなぐ三ノ宮らしい魅力ある計画とはなっていない。彼女の手法は現場の音を採集し周波数で解析、可視化したデータを街の音として街づくりのキーコンセプトとした。それでできた街は中心から人々が行き交う雑踏の、心地よいノイズが満ち溢れたどこにもない視点の作品となった。 <眞野 サトル>
斑鳩の歴史を辿る 卒業展2023
鹿田 泰希 空間デザイン学科
世界最古の木造建築である「法隆寺」…それがどこにあるかと聞くと知らない人が多いのではないでしょうか。私の地元である「斑鳩町」はとても知名度が低いことが1つの課題点です。斑鳩町には法隆寺だけでなく歴史的建築物が他にたくさんあります。それをみなさんに知って欲しいと言う思いで私はこの卒業設計を計画しました。
自分の思いを形にするのは難しく、苦戦する日々でしたが、担当の先生のアドバイスや友達の意見などもあり私の思いが形になったのではないかなと思います。
【指導教員からの講評】
日本屈指の観光資源でもある法隆寺を有する斑鳩町をテーマとした作品は、作者自身の故郷である斑鳩をたくさんの人たちに知ってもらいたいと思う純粋な想いが詰まった作品である。今作は観光客が楽しむ為の娯楽施設とは違い地域の風土や景観に寄り添ったデザインとなっている。短歌「 ちはやぶる 神代も聞かず 竜田川 からくれなゐに 水くくるとは」にも登場する竜田川を敷地とし、短歌が含む意味を立体的アプローチとして表現し、ひとつの建築としての単位ではなく日常の生活と溶け合う景観デザインとしてまとめられている所が良い。 <阪本 剛史>
方向音痴のひとはどう歩くのか 卒業展2023
林 蓮太朗 空間デザイン学科
僕の卒業設計では方向音痴の人はなにを見てどう歩くから迷うのか、方向音痴の人は迷わないためにどう歩くべきなのかを取っ掛りとして取り組みました。この方向音痴というテーマに着目した理由としては、僕自身が方向音痴で何が原因でなるのか、改善はできるのかと散歩中に思い立ったからです。まず方向音痴について調べてみると、Google mapなどのネットワークが発達していることで、どこでも容易に行ける分、特に若い世代の方向音痴率が高くなってきているとわかりました。なにかこの問題を解決は出来ないかと考えた末に本当に方向音痴って悪いことなの?と思いました。方向音痴の人は道に迷う、しかしそれにより見ることのなかった景色が見れるようになる機会が多くなるのではないか?とポジティブに考えさせるような制作をしました。
【指導教員からの講評】
この作品は作者自身の方向音痴という感覚に焦点を当てた大変ユニークな作品となっている。ネガティブに捉えられる方向音痴をいう特性を逆手に、場当たり的なフィールドワークの中から街の見え方・見方を再発見していき自分自身の感覚をReデザインする結果に繋がっている。動画編集や100人を超えるアンケートの実施等、リサーチもしっかり行われ空間デザインの独自性溢れる作品となっている。 <阪本 剛史>
New road 卒業展2023
坂口 渚織 空間デザイン学科
人口減少や高齢化によりシャッター街になっている商店街を人が行き交うように再生することを目的に計画しました。
今回の敷地が和歌山県和歌山市のぶらくり丁商店街で、私の生まれ育った場所です。昔からあるぶらくり丁がなぜシャッター街になったのか気になったのがきっかけです。
商店街に直接車で通れるようにし、駐車場をつくることで、新たな導線ができる。空き店舗や商店街のデッドゾーンをとりのぞき、緑地化したり新しく出店する場所として活用しました。
将来的にはこの計画を活かして活用されていない空き店舗や商店街が一つでも減ればいいなと考えています。
【指導教員からの講評】
作者の生まれ育った和歌山市のぶらくり丁商店街の未来を描いた作品である。商店街が抱える問題や未来性に対して既存機能の活性化ではなく、新しい価値・機能として道を提案している所が良かった。既存機能を最小化し、2階エリアを緑道とする事で本町公園から和歌山城への南北を結ぶ交通ハブとしての機能も期待できる。利便性を増進するために商店街内部に駐車スペースを引き込んだことも、時代性を考えた商店街の寄り添い方と言える。2階エリアに残した既存軸組の活用方法についてはもう少し入念な検討が必要であるが、空間の余白としての期待値は高い。 <阪本 剛史>
よりミチしたくなるマチ 卒業展2023 SDGs賞
川原 美有 空間デザイン学科
私の卒業設計は地域コミュニティや住民、他の地域の人達からの価値の下がってしまっている私の地元の徳島県津田町を、今ある資源を活用してエリアリノベーションという手法を使い、地域全体の問題解決をし、寄り道してみたいと思える楽しい町にしようというものです。
エリアリノベーションにはハレのミチとケのミチを作り、その道のコンセプトに沿った、主に県産材の徳島スギを使った施設、ストリートファニチャーなどを作ります。
今ある資源+理想の資源を組み合わせた今後あり得るかもしれない未来の新しい津田町を伝えれるように頑張ります。
【指導教員からの講評】
作者の故郷でもある地方都市を、エリアリノベーション手法で活性を図る提案。
現地や関係者への取材調査をもとに地域の抱える問題点と潜在資源を明らかにして粘り強く考察を重ねたことが、地域内の2本の道路を「ハレとケのミチ」として再定義する、楽しいまちづくり提案に繋がっている。<鍵谷 啓太>
第二の家 卒業展2023
永田 千尋 空間デザイン学科
ヤングケアラーで時間を自由に使えないことによって生じる「経験の格差」をテーマにした作品です。悩んでいる子どもたちが、自分のために用意されていると思える場所をつくりたいと考え、ヤングケアラーを卒業設計に選びました。
SDGsの取組としては、4番の「質の高い教育をみんなに」と10番の「人や国の不平等をなくそう」、11番の「住み続けられるまちづくりを」の3つです。勉強ができる環境を設けたり、遊びや習い事のようなこともすることが出来ます。また、地域の人ごと巻き込むことによって交流が増えたり、ヤングケアラーの認識や理解に繋がって欲しいと思いました。
【指導教員からの講評】
自身の経験をきっかけにヤングケアラー(介護に従事する児童)の諸問題を知った作者による、彼らが社会や行政と繋がる場所を作ることで課題解決の糸口を見い出せるのでは?という提案。建築の敷地=記号としてまちに当たり前にあるコンビニの分布を建築計画の単位とするアイデアが面白い。初期に行政や地域へのリサーチと考察をしっかりと行なったことで、独りよがりではないリアリティのある設計となっている。優しい眼差しの建築である。 <鍵谷 啓太>
中崎古今嚮後予想図屏風 卒業展2023
竹中 球人 空間デザイン学科
【自分が想像する未来の中崎町】です。先ずなぜ中崎町を選択したかという理由は、第一に20年以上住み続けている地元であることが最大の理由です。第二にこの中崎町という場所は、大阪大空襲などの戦火から生き残り、現代建築であるビル群に囲われ過去と今が混在しているところだと感じたからです。第三に約10年程前から、空き家となった古民家をリノベーションという形で復活させ、カフェや古着屋などが急増し、ほぼほぼがらんどうだった町が一気に若者たちが集う町に変動したことに興味がわいたからです。
これらの理由を全部まとめて表現するために考えたのが、特大ドローイングの屛風を作成するということでした。屛風という形をとった理由は、第二の理由にある通りビル群に囲われている所が洛中洛外図屛風っぽいなと感じたからです。
【指導教員からの講評】
作者が様々な想いを抱きながら生まれ育った街の情景を転写した作品。ドローイングとは孤独に自己と向き合う作業であり、繊細で時に愚徹な筆致で描かれるのは彼の目を通した街と、青年期の自画像であると思う。 <鍵谷 啓太>
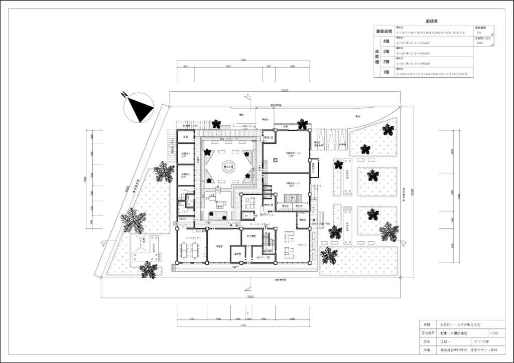
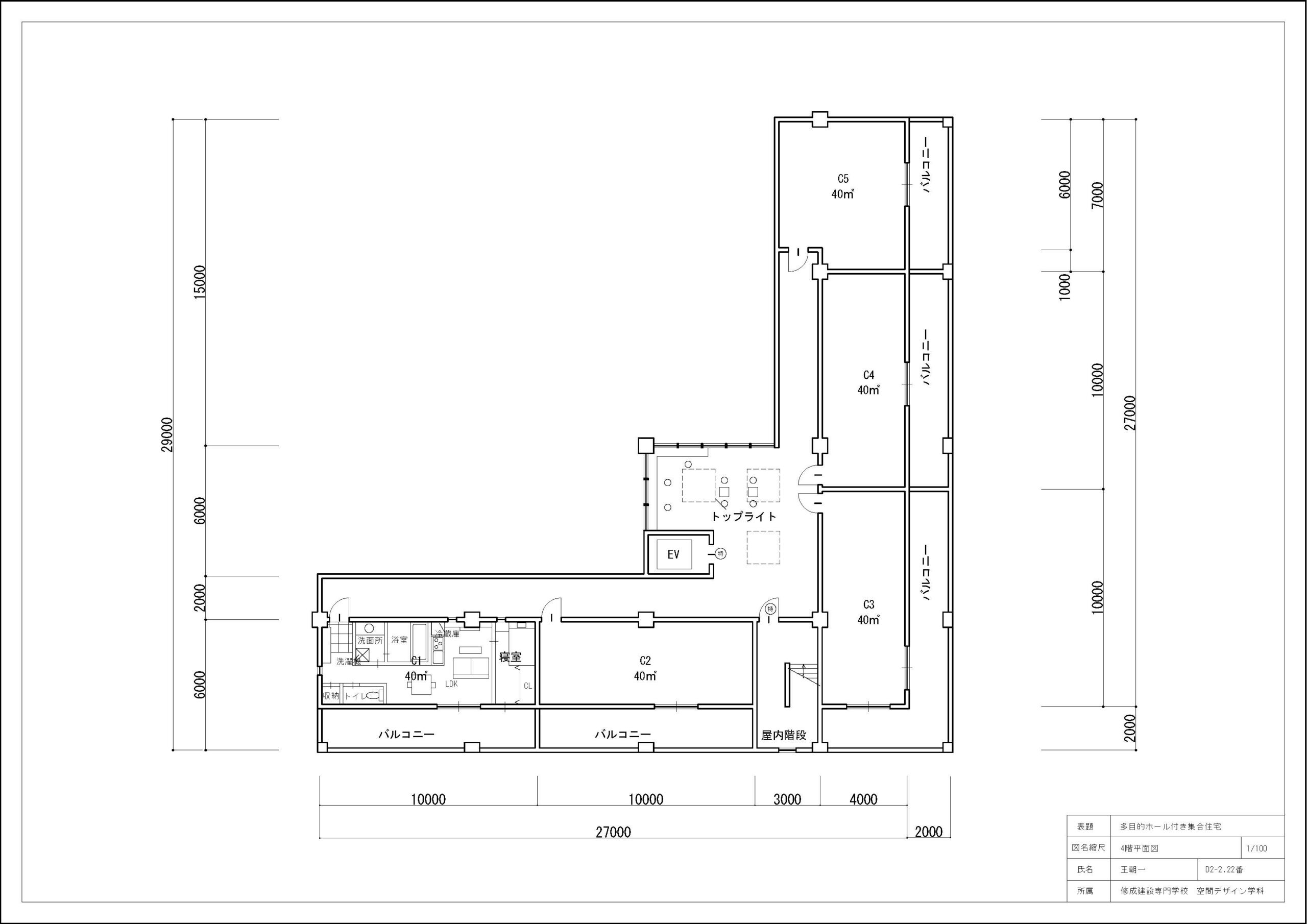
SPRING 卒業展2023
王 朝一 空間デザイン学科
現在、人々の生活はさまざまな変化を遂げています。 たとえば、多くの人が在宅勤務を始め、誰もが隣人とのコミュニケーションに気を配り、にぎやかで暖かい場所に住んでいました。 そこで今回は、入居者のプライバシーを確保するだけでなく、周囲とのコミュニケーションも十分にとれる集合住宅をコンセプトに設計しました。SDGsについては4番質の高い教育と11番住み続けられる街づくりを選んで、1階には自習室があり、学生さんが宿題や勉強ができる自習室があります 。大人も読書室のような部屋で窓の外の緑を眺めながら仕事をしたりすることができて、気分が良くなります。 また、2LDK・3LDKには仕事コーナーを設け、在宅勤務にも対応。 広場にはBBQコーナーや小さな噴水があり、特に住民のエリアとは明確に分けて、人とのコミュニケーションも増えるようになると同時に住民たちのプライバシーも確保することが出来る住宅です。
【指導教員からの講評】
基本設計コースのテーマである街のリビングを意識できる大変魅力的な作品である。建物の計画も丁寧に行われ、内外を連続的に繋ぐ渡り廊下が施設空間の豊かさに繋がっている。特に既存の公園としての機能をよりブラッシュアップした外部計画が素晴らしく、2年間の成果が十分に発揮された模範的な作品として評価します。 <阪本 剛史>
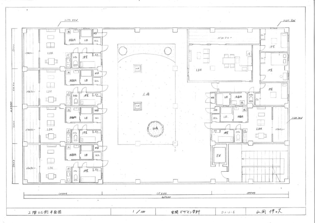
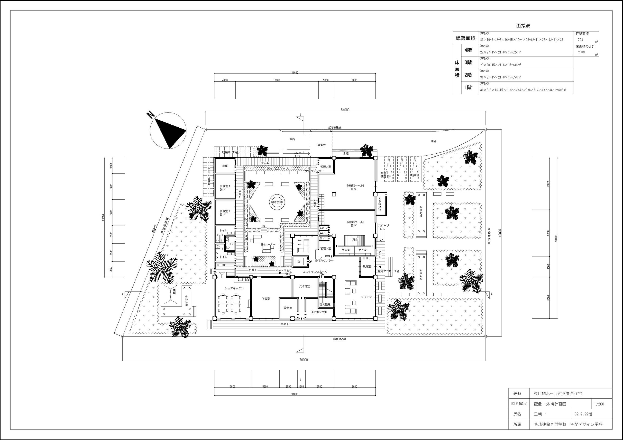
地産地消ができるマンション計画 ― なにわ野菜を広め、街を賑やかに 卒業展2023 SDGs賞
山岡 伊吹 空間デザイン学科
「地産地消を通して、健康と賑やかな街づくり」をコンセプトに設計をしました。
計画地が大阪府と言うこともあり設計のテーマに「なにわ野菜」を採り入れました。大阪府民でもまだまだ知名度が低いその存在を、知ってもらえる機会にもなると思いました。
3階部分に畑を設けてなにわ野菜を育て、1階部分に設けたカフェ+シェアキッチンでは収穫した野菜を調理・提供できるようにしました。
このカフェスペースは、マンションの住民だけでなく街の人達など外部から来た人達も利用できるようにしました。
SDGsへの取組みとして 「15.陸の豊かさも守ろう」、「12.つくる責任つかう責任」、「11.住み続けられるまちづくりを」、「3.すべての人に健康と福祉を」の4つの実現を目指しています。
【指導教員からの講評】
SDGs解決への提案を含んだ、コミュニティホールを内包した集合住宅という設計課題に対し、「なにわ伝統野菜」を育てる農場と、その野菜を使ったカフェ+シェアキッチンでの食育の場を重ねた案。建築計画と設計製図の基礎能力が着実に身についている点、コンセプトが一気通貫したインテリアパース表現と色彩計画に、論理的にまとめられている点を評価した。また卒業設計の進行スケジュールや内容の自己管理も良く出来ていた。 <鍵谷 啓太>
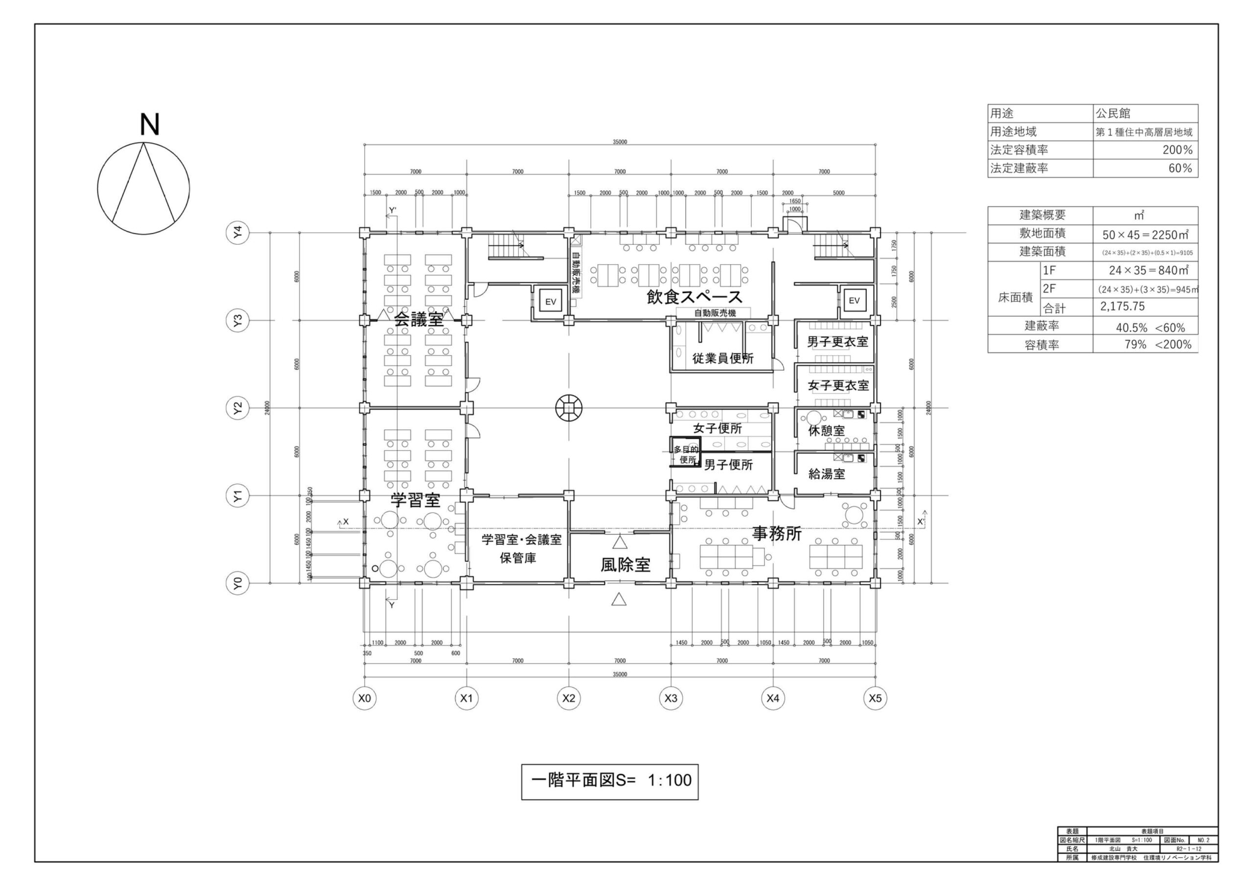
公民館兼カフェ 卒業展2023 建築施工管理コース賞
北山 貴大 住環境リノベーション学科
卒計をするにあたり、すでに就職が決まっていたゼネコンの施工管理をする上でコースを選びました。鉄筋コンクリート造で公共施設を計画するにあたりすぐに公民館と浮かびました。公民館の計画に当たりコンセプトとして、運動が好きなのでカラダを動かせることと会議や学習が出来る場所等を基本に利用者がくつろげるスペースとカフェを取り込んだ理想の計画が出来ました。図面を作成すると平面図はスムーズにいけましたが、断面や立面で躯体との関係がでてきて大変でした。その時に先生から躯体の構造部材名や記号等の建物に必要な箇所や仮設等で必要な知識を教えて頂きました。先生から教えてもらったことが就職して活かせるようにしていきたいと思います。卒計をして図面を考えることが苦手でしたが、今までよりスムーズに書くことが出来るようになって自信にもつながる卒業設計だったと思います。
【指導教員からの講評】
施工管理に必須である施工図を学生時代に描き上げることは非常に有意義だと感じております。細かな詳細までには至っておりませんが、鉄筋コンクリート造の施工図を描き上げたことに自信を持って頂きたいと思います。当初、色々な不安を抱えながらスタートしましたが、しっかりとやるべきことをやった作品であります。 <樋下 昌俊>
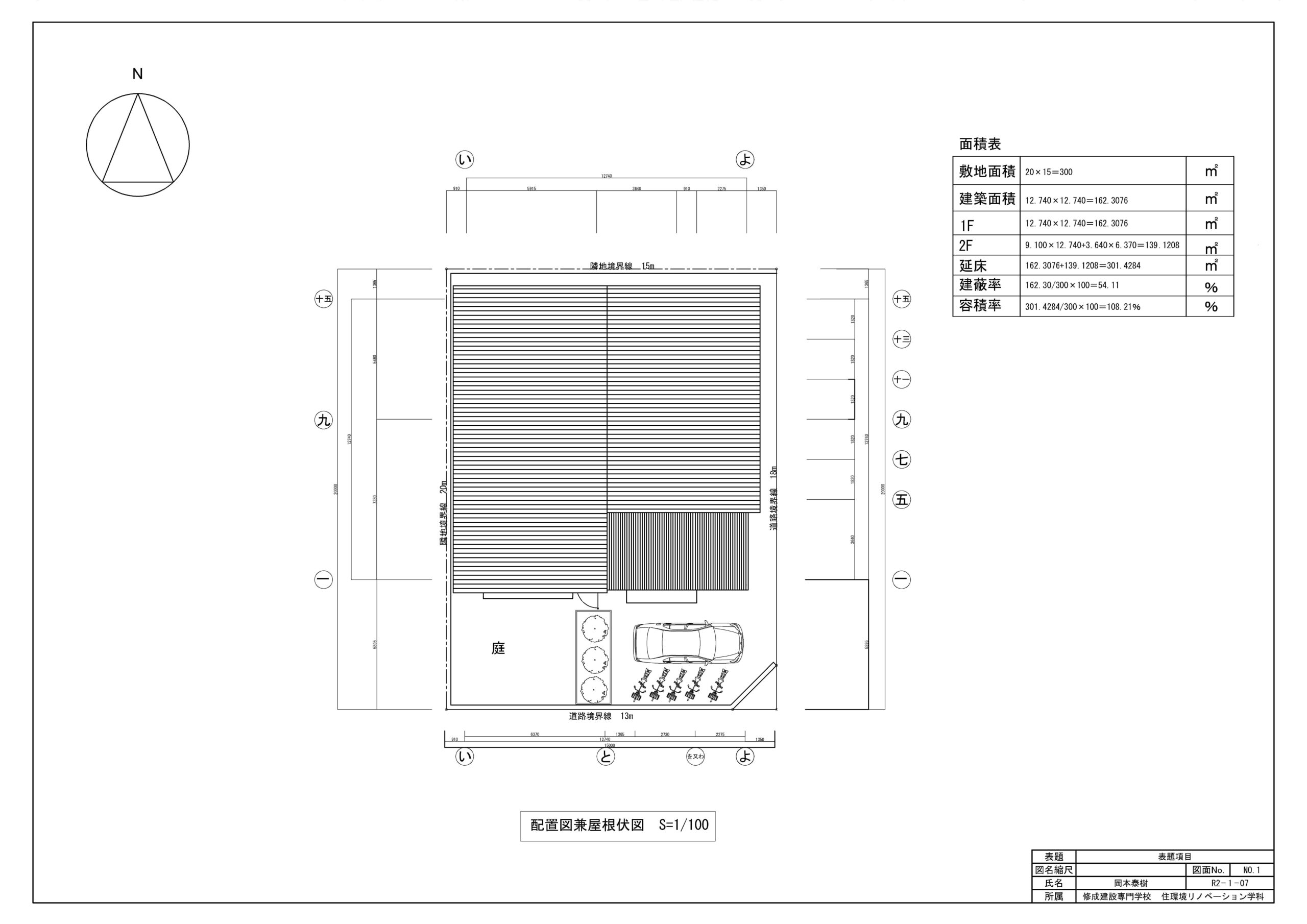
吹き抜けのある家 ひろいえ 卒業展2023 木造施工管理コース賞
岡本 泰樹 住環境リノベーション学科
最初から自分の家を建てるならと思って卒業設計をやりました。やるときのイメージとだいぶ変わった点は屋上にルーフバルコニーが無くなり2階に普通のバルコニーへ変更、屋外での最初の計画はなくなりましたが、映画鑑賞や室内でのくつろぎ空間を作ることが出来てほぼ満足です。木造模型の図面は教科書をみながら出来て良かったと思います。最後は体調不良もあり大変だったけど完成して良かったです。先生には最初と最後だけ指導してもらって、最後の模型の組み立て方は助かりました。CADの入力も自分でやりました。卒業設計は自分でやることが多かったです。
【指導教員からの講評】
本人の住みたい家からの基本テーマから計画開始。敷地も実際に住んでいる場所でまさに自分が住むという気持ちのこもった作品である。その思いは時間が経過すると共に葛藤があり最終まで左右されながらの完成となった。模型は1年次におこなったこともあり時間の経過でもどかしさはあったが、最終はタイトルの通り吹き抜けを配置、趣味等を含めた本人理想の住宅ではないでしょうか! <山本 順也>
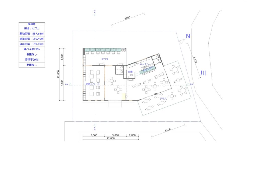
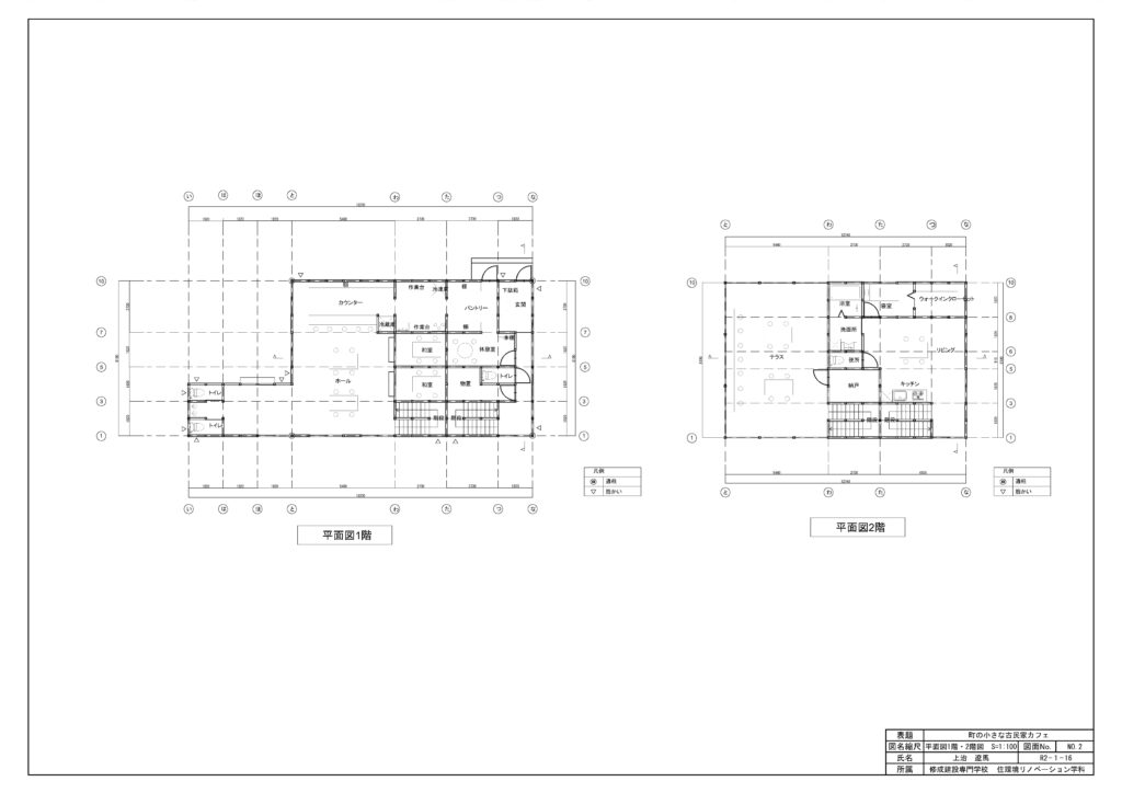
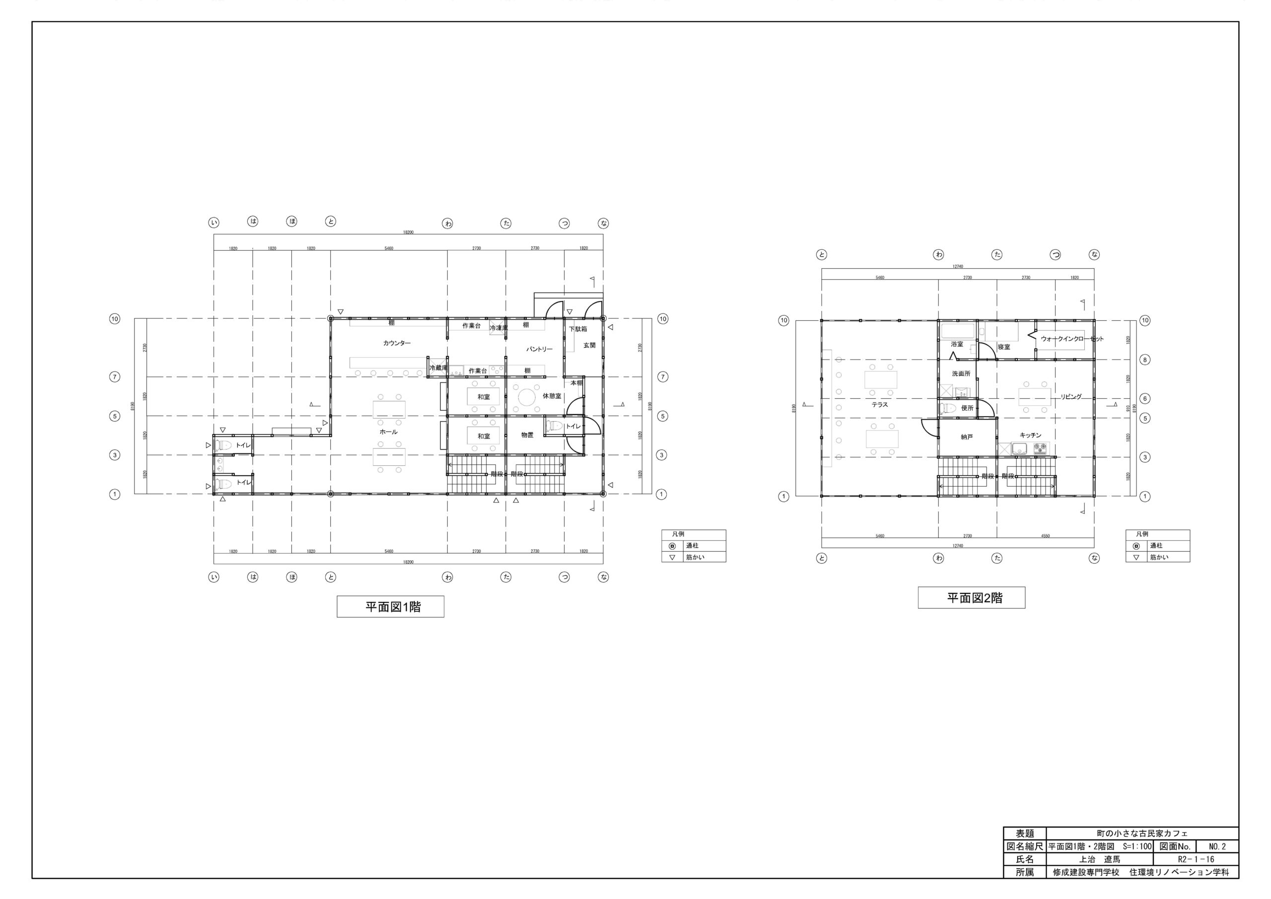
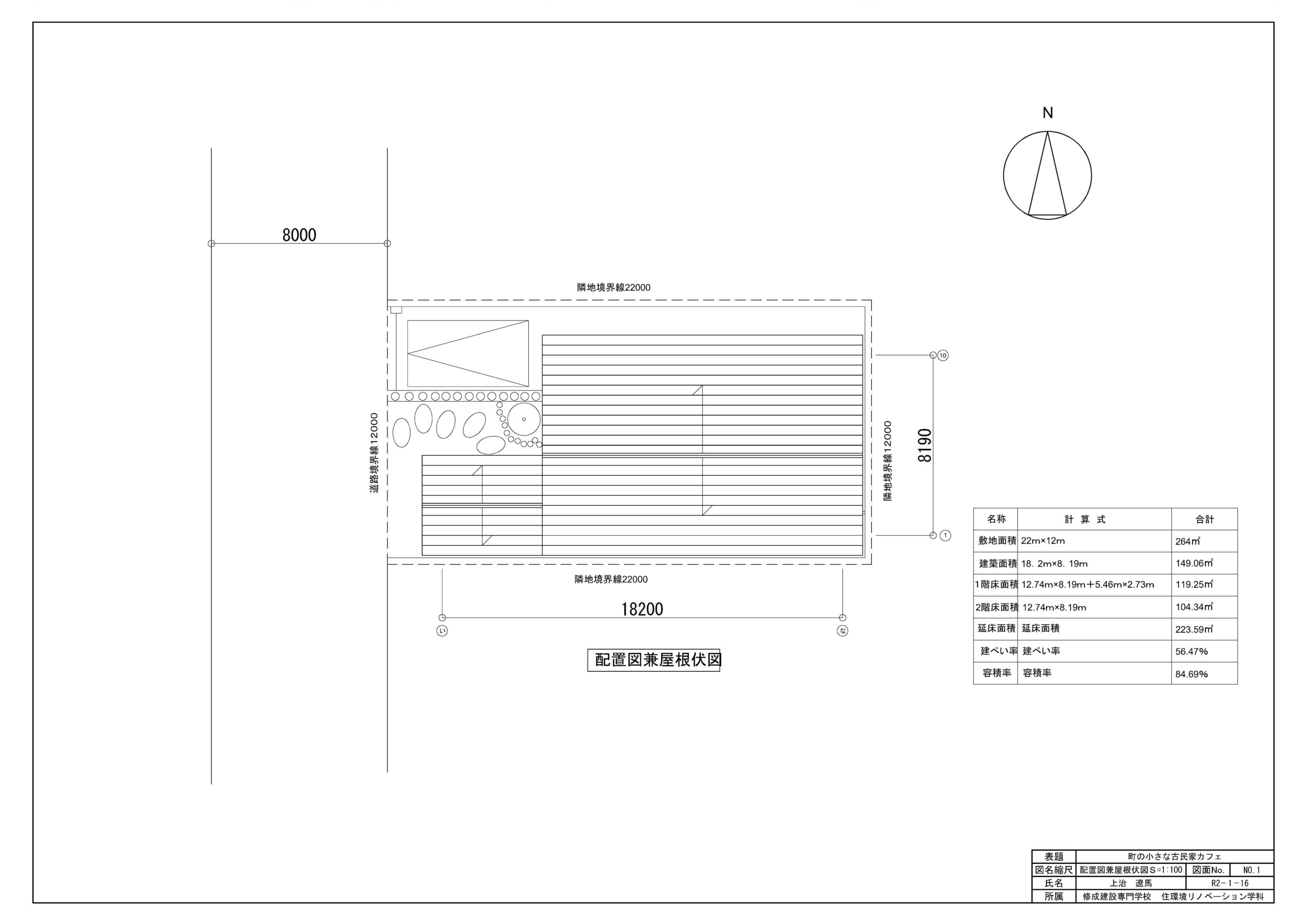
町の小さな古民家カフェ ~環境のことを考えた町作りを~ 卒業展2023
上治 遼馬 住環境リノベーション学科
卒業設計でテーマにした課題は、古民家×カフェ兼住宅です。
私が建築に興味を持ったきっかけは古民家です。古民家が持つ独特の雰囲気や古い木材の香り、重厚で風格のある柱や梁等に魅力を感じるからです。
そこに、「マイホームを建てる」という夢を掛け合わせたのが今回の作品です。カフェ部分は、古民家の魅力である柱や梁が堪能できる大空間を意識して設計を行いました。2階部分のテラス席では四季の風を感じられる空間を演出する事に拘りました。また1階部分には畳敷の座敷席を2室用意しています。カフェ部分では、大空間、開放感を意識して設計しましたが、住宅部分では無駄をそぎ落とすことを意識しました。人が生活する上で必要最低限の空間のみで構成しています。大空間と狭小との対比を意識した作品です。
私は今後、住宅の施工管理として働いていきます。今回の卒業設計を通して軸組について理解が深まりました。この経験を活かし、立派な技術者になりたいです。
【指導教員からの講評】
古民家カフェ兼住宅というよくある設計だか、テーマにしていた「大空間と狭小との対比」をうまく表現した作品である。古民家を選んだ理由も古民家が好きという理由もあるが、もう一つは学校で学んだSDGsがきっかけであった。古材を使うことで「モノ」の循環により、11番の「住み続けられるまちづくりを」を考えた作品となった。模型についても彼らしく丁寧に作り上げていた。コンセプト、図面作成、模型製作とスムーズに進んでいったのも、2年間しっかり学んできた結果だと感じている。2年間の学んだ事が形になり、集大成として素晴らしい作品が出来上がったと思う。この経験を活かして現場監督として成長していってほしい。 <井上 嘉亮>
温泉とジムが楽しめる施設 卒業展2023
吉岡 拓人 住環境リノベーション学科
1年生の時から先生から卒業設計の事は大変と聞いていたが、実際にやってみて大変だと感じたのがこの卒業設計の第1印象です。計画の段階から「建築学科のやることを何でするんだろう?」と思ってました。先生の説明で卒業設計の意味が分かり、卒業することも大事だけど学びの集大成という事で頑張りました。作成中は躯体の事があまりわからなかったけど、やっているうちに知識がついたと思いました。確かにCADなど階段や入り口などのスペース等細かいことや足場と生コン拾い出しは良かったと思います。卒業してからの事も考えながら作品を完成出来たことが一番良かったです。
【指導教員からの講評】
当初は単純なことで終わらそうと考えていたと思います。敷地の検討から探した敷地が学校とふざけた考えでした。しかし、計画を「学校にあれば良いな」というテーマから意気込みが変わり実際にあれば良いと思う作品になったと思います。その後は気持ちの波はあったが最終はクラスで提出トップで完成しました。卒計の作品も評価しているが、完成後のクラスメイトへの指導を実施して信頼を得た期間も評価したいと思います。 <山本 順也>
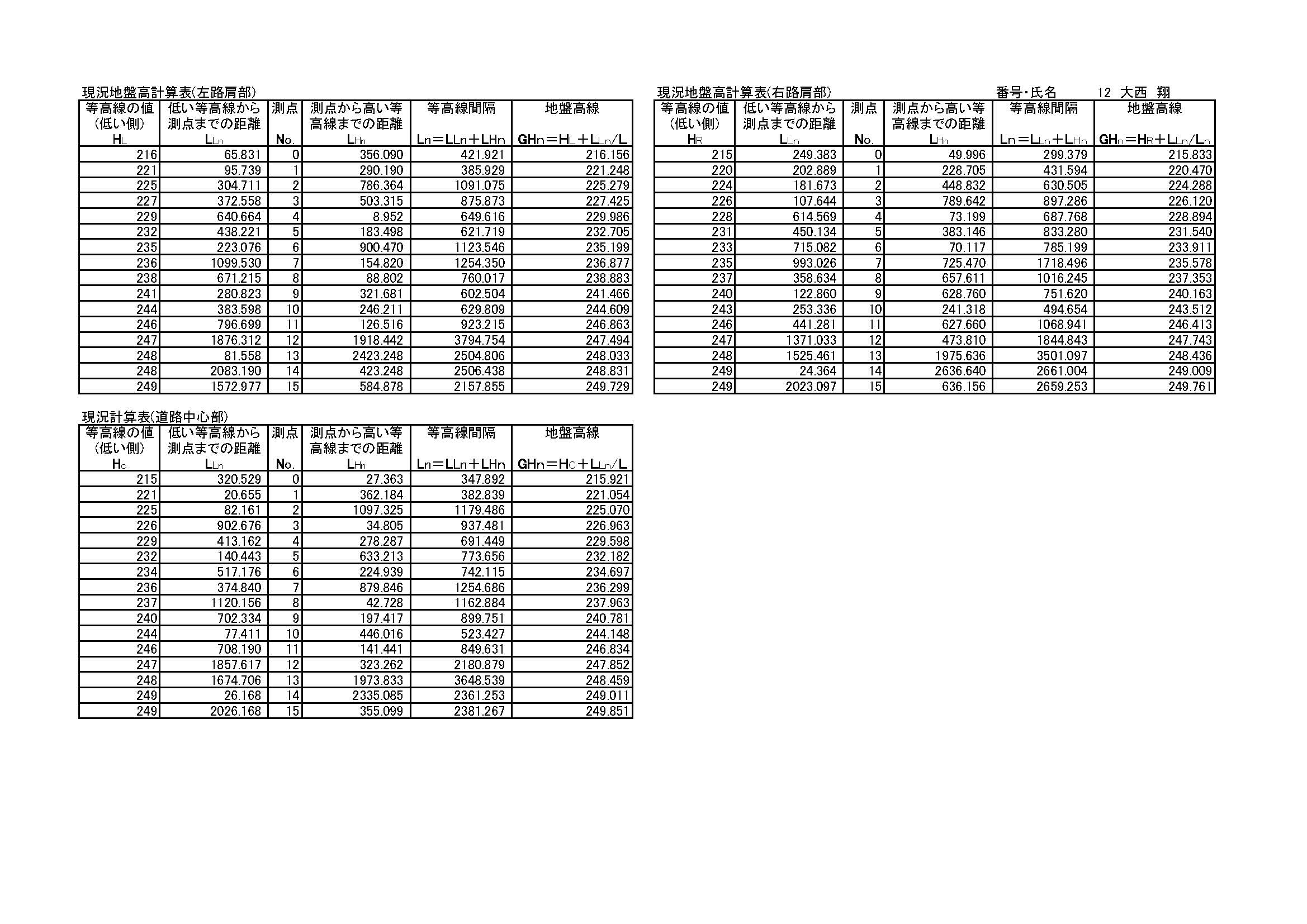
地下埋設物調査 卒業展2023 道路設計コース賞
小西 恵伍、貞中 隆誠 土木工学科
初めに地下埋設物調査と聞いてイメージしたものは、地下に埋設された上下水道やガス管等を掘削工事によって誤って損傷しないように、事前に調査し対策するだけの簡単なものだと思っていました。
しかし、実際に研究を進めていくと各埋設物の管理者が別々で資料の縮尺も記号も統一されていないことに驚きました。
各管理者の資料を1つにまとめるには専門知識・計算力を必要としましたが、一目で地下埋設物全体がわかる複合図を完成することが出来ました。
工事や維持管理において地下埋設物調査は重要な作業だと気づくと同時に、全国的に見て複合図の完備があまり進んでいないことを知り今後の建設業界にとって大きな課題であると感じました。
【指導教員からの講評】
地下埋設物調査の目的は、地上からは目視できないガスや上下水道などの調査・測量をおこない、各管理者が保管している資料を精査して一つの図面にまとめ『地下全体の見える化』をすることである。
一つの図面にすべての地下埋設物をまとめるためには専門記号の解読や三次元位置の計算能力が必要とされたが、丁寧に作業を積み重ね完成させた。 <川西 幸男>
道路交差点設計 卒業展2023
西井 優斗 土木工学科
この作品は、私たちが日ごろ頻繁に使用している交差点の設計です。与えられた交通条件をもとに、交差点で渋滞が発生しないよう、信号の長さを調整するなどして計算した上で、交差点の幾何構造を決めました。計算結果を反映させながら内側半径・外側半径・緩和曲線の半径を算出し、それらを組み合わせて平面図の右折・左折導流路を表現したところはかなり苦労しました。是非交差点の真ん中に着目してみてください。
【指導教員からの講評】
この作品は、ある想定の交通流を捌くことができる交差点を設計するという、土木のソフト面である「交通工学」をメインとしたものである。信号現示を調整し、需要率を下げて交通流を捌くことができる交差点が設計されている。ハード面についても、道路構造令に準拠した幾何構造で、苦労した導流路も正確に描かれている。ハード面とソフト面の両方が考慮された、現実の設計に近い作品であった。 <広瀬 一樹>
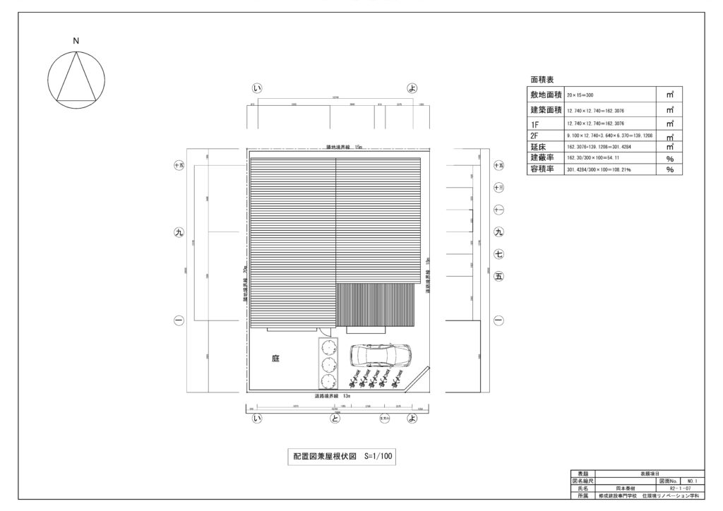
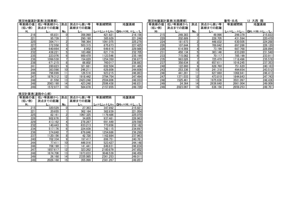
道路路線設計 卒業展2023 道路設計コース賞
大西 翔 建設エンジニア学科
この卒業設計は地形図を用いて片側5m全幅10mの道路を300m計画するものでした。地形図を計測して縦横断測量を行い、縦断図・横断面図を作成しました。
この図を基に縦横断の計画をしました。
縦断計画を作成した時は、ここでミスを発見し、大幅な修正が必要になりましたが何とか完成できたのでよかったです。
Excelで算出した数値と図面との整合性を確認しながら作成していくというところが大変でした。
ExcelやCADでの設計作業は初めてでしたが、作業していくうちに、だんだん使い方などが分かってきて、ミスが発生した時も一人で修正できるくらいの知識がついたと思います。
この知識は、これから働いていく中で必ず役に立つと考えています。
【指導教員からの講評】
道路設計コースの道路路線設計は、入学してから学んだCAD製図、測量学、施工学などの知識を活用して、地形図を使いペーパーロケーションで等高線を読みながら、縦横断測量から土量計算までの一連の流れを実施している。この設計はこれまでの学習成果である知識を活用し、直線の道路ではあるがエクセルの計算機能やAuto CADの計測機能等を活用し道路の縦横断計画をして図面にまとめている。 <野瀬 孝男>
大野川緑陰道路コミュニティ広場 -にこにこランド施工計画- 卒業展2023 準グランプリ
片岡 悟 ガーデンデザイン学科
卒業制作の課題として取り組んだのは、現実に実現する大野川緑陰道路コミュニティ広場「にこにこランド」施工。西淀川区と修成ガーデンデザイン学科との提携により、これから数年かけて完成させていくということで、その一翼を自分たちも担えることにワクワクしました。積算(費用)と工程表の作成では何回か間違いに気づき、先生方のアドバイスを受けながら完成した時には、やっと授業で教えられてきたことをきちんと理解できたと思いました。模型も今回施工の「にこにこランド」と数年後完成する「コミュニティ広場全体」の2つを作りました。細部までこだわって現地の状況を再現しながら制作したので、多くの時間と労力を費やしましたが納得のいく作品に仕上げることができました。
【指導教員からの講評】
にこにこランド計画予定地の現況調査、基本構想、プレゼン資料、施工図、積算、そして施工計画を検討し総合的にまとめた作品になっている。作成過程に於いて疑問点や理解できないところを一つずつ解明、クリアしながらものづくりの流れに沿って作品が進捗する中で職業造園を理解することにより、施工実務を経験できたと思う。作品づくりに対する姿勢、そして何より直向きな努力を評価したい。にこにこランドは現在学生達が施工中であり2023年3月末に完成を目指している。<中安 哲男>
ミツバチ 1.1 卒業展2023 施工コース賞
林 可 ガーデンデザイン学科
今回の卒業制作としての施工コースは、ガーデンデザイン学科がこれから何年続いて実際に施工していくプロジェクト予定です。制作のポイントは、正式に施工する前の前期準備、施工図、設計計画、予算の見直し、及び施工スケジュールなどです。
普段、皆さんは施工ということが図面や計算であると思っているが、今回は従来の施工における各種資料を完成した上で、プレゼンテーションのビジュアル表現をデザインしました。目的は、わかりやすい図を通して、今後このプロジェクトに参加する人がより早く直感的に施設の構造や施工スケジュールなどを理解できるということです。
自分の卒業制作に対して、皆さんがわかりやすいという評価をいただき、たいへん嬉しくて感謝しております。学校での2年間はあっという間に過ぎてしまいました。先生方のおかげで、専門知識がだんだん広まっています。これからもっと頑張ろうと思います。
【指導教員からの講評】
この作品もガーデンデザイン学科が目標とする「ものづくりの工程に沿って科目を連結させる線状的な学習」を意識したものになっている。皆で考えたデザインを基に自身が工事費を算出し、要所要所を色付けし施工計画としてまとめたものである。図面だけで終えるのではなく、実現させることを目指し真剣に取り組んだ2年間の集大成といえる。留学生ハンデをものとせず頑張った結果「悔いのない卒業制作」として残った。作品に全てが現れている。<中安 哲男>
Collage 卒業展2023 設計コース賞
田中 理央 ガーデンデザイン学科
とにかく、非現実感、喧騒から離れた空間、そこだけ時間がゆっくり進むような、そんな場所を作りたいと思って設計に臨みました。
絵画コンセプトにした理由は、「絵の中に入れちゃったら文字通り非現実だよなっ!」と、思ったからです。
フレームのゲートをくぐれば、別世界に行けちゃう。ぐるぐる自由な道と、次々に切り替わる景色。閉塞感と開放感。楽観的で悲観的。
この公園からから、「楽しそう!」でも、「どうして?」でもなんでもいいので沢山の事を感じて貰えたら嬉しいです。
【指導教員からの講評】
「collage」とは、様々な素材を同一画面に組み合わせる芸術的手法との事で敷地をキャンパスに見立てて、主要な場所をみんなが知っている絵画の一場面として計画しているところに斬新さを感じました。非日常的空間をみんなが知っている絵画をモチーフにし、それを具体的に計画するところに感心しました。各々の場所に続く仕掛けも面白く、次は何だろうと期待を持たせてくれました。また、家に籠っていたコロナの時期から屋外に出て、解放されることは身体的・精神的にリフレッシュされます。そして免疫力を向上させる事でしょう。現代人は、昨今の社会情勢にともない、心身的に疲れています。その人々を癒すことの出来る空間の創造は、これから必要になってくることでしょう。私たちの学科はみどりを扱います。みどりは癒してくれます。園芸療法とそしてコラージュ療法が組み合わさった様なこの計画は、今後新しい公園計画の考え方になるかもしれないと感じました。
※追記「コラージュ療法」というものがあり、これは心理療法の一分野に属する方法であるらしい。<松田 泰行>
Returning Nature to the Earth ~グリーンインフラ技術で持続可能な社会基盤を~ 卒業展2023 SDGs賞
髙田 結衣 ガーデンデザイン学科
近年、人口減少による国土管理の担い手不足、気候変動による災害の増加、また環境問題の深刻化など多岐にわたる課題が迫っています。
そこで、緑の持つ機能を用いて魅力ある持続可能な基盤づくりを後押しするというグリーンインフラの考え方を用い、今回は農地と集中豪雨やヒートアイランド現象等の対策となる雨庭を計画しました。
施工計画はその雨庭を対象とし取り組んでいます。
雨庭はまだ前例が少ないためわからないことも多く苦戦しましたが、先生方やクラスメイトに助けられ仕上げることができました。
卒業後は 緑の力を最大限に発揮させた美しくて賢い緑空間の創造に向けて、知識と経験を深めていきたいと考えています。
【指導教員からの講評】
「グリーンインフラ」による新しい公園計画を提案してくれました。地球に優しく、そして持続可能な(SDGs)、社会と経済の発展に寄与する計画になっているなと感じています。都市に必要な自然環境を創出することはみどりを扱う、私達の学科ならではの計画だと思います。
デザイン重視で無く、設計主旨に時間を掛け整理し、今人々に必要なものは何かを導き出してくれました。また、彼女の貪欲さには敬意を表したいと思います。設計にとどまらず、施工についてもこの計画の中で検討しているのです。その探求心は、これからも続けて行って貰いたいと思います。結果、導き出された「雨庭」という言葉は、これからの公園計画に新しい方向性を示してくれるように思います。多自然型という考え方による公園計画が、どの様なかたちになるのかを示しくれて、後輩の学生たちに与えた影響は大きいと感じました。<松田 泰行>